**Standout Features:**
- Charming Victorian terraced house with character
- Spacious lounge/dining area and contemporary kitchen
- Two generous bedrooms and a modern bathroom
- Private garden with direct access to a self-contained office (ideal for remote work)
- Central location, walking distance to the city center and mainline station
- Chain-free sale
**Potential Concerns:**
- Average internal space typical of terraced homes
- Some structural updates may be beneficial
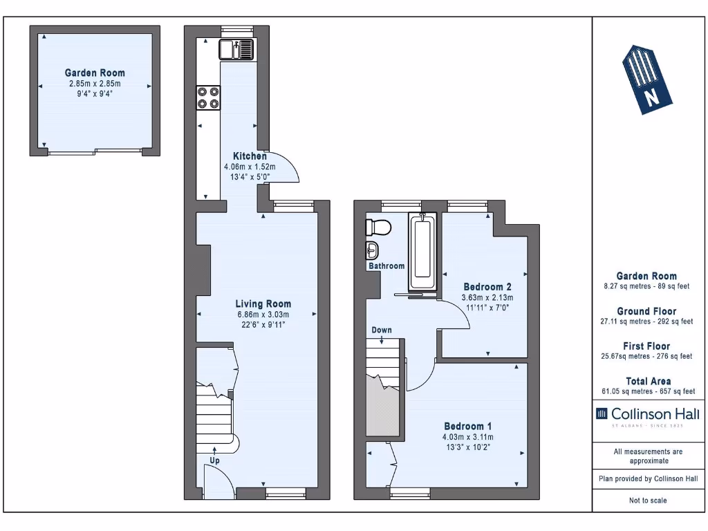
This delightful Victorian terraced house offers an exceptional blend of charm and modern living in the heart of St Albans. With 657 square feet of thoughtfully updated space, this home features an inviting lounge/dining area perfect for hosting, leading into a contemporary kitchen that caters to all your culinary needs. Upstairs, you'll find two generously sized bedrooms along with a stylish, well-appointed bathroom.
The private garden not only enhances your outdoor space but also provides access to a self-contained office, offering flexibility for remote work or a serene sanctuary to retreat to. Nestled in a family-friendly neighborhood, this property is surrounded by good schools and an array of local amenities, making it ideal for young families or first-time buyers seeking comfort and convenience.
While the property showcases a charming period aesthetic, prospective buyers should consider future renovations for insulation improvements, given the solid brick walls. This beautifully balanced home, offered chain-free, presents an excellent opportunity that is not to be missed—envision your life here, where character meets modern living!
2 bedroom terraced house for sale in Alexandra Road, St. Albans, AL1 — £467,500 • 2 bed • 1 bath • 550 ft²
2 bedroom end of terrace house for sale in Sopwell Lane, St. Albans, Hertfordshire, AL1 — £600,000 • 2 bed • 1 bath • 907 ft²
2 bedroom terraced house for sale in Albert Street, St. Albans, Hertfordshire, AL1 — £700,000 • 2 bed • 1 bath • 973 ft²
2 bedroom terraced house for sale in Alma Cut, St. Albans, AL1 — £650,000 • 2 bed • 1 bath • 808 ft²
3 bedroom end of terrace house for sale in Hart Road, St. Albans, AL1 1NF, AL1 — £725,000 • 3 bed • 1 bath • 786 ft²
3 bedroom terraced house for sale in Alexandra Road, St. Albans, Hertfordshire, AL1 — £875,000 • 3 bed • 1 bath • 911 ft²






























































