Single-floor family home with an impressive long rear garden and driveway.
Detached single-storey bungalow on a large freehold plot
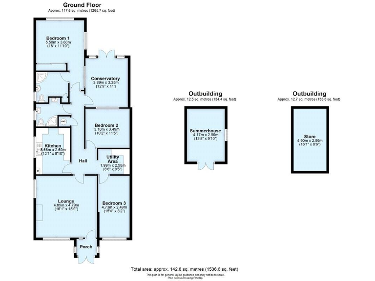
Guide price £700,000. This detached three-bedroom bungalow sits on a large freehold plot on Chelsfield Lane, offering single-storey living with an unusually long rear garden and a rural outlook over farmland. The layout is traditional and family-friendly: three double bedrooms, an en-suite shower room, separate utility area and an open-plan living space that connects well to the garden.
Stand-out practical benefits include a wide driveway with off-street parking for multiple vehicles, mains gas central heating with boiler and radiators, and double glazing installed since 2002. The garden is a major asset — largely lawned with mature borders, patio and storage sheds; the second portion slopes down to open fields and feels private and tranquil.
The house dates from the early 20th century and appears well kept, but buyers should note the solid-brick construction is assumed to have no cavity insulation. There is potential to modernise or improve thermal performance and finishes; the compact modern kitchen is tidy but the property will reward further updating. Council tax is above average for the area.
For families the location is strong: several well-rated primary and secondary schools nearby, easy access to Goddington Park and local bus links, with Chelsfield station and Orpington town centre close by. The combination of single-level accommodation, large garden and village-edge feel will suit buyers seeking space and future extension or refurbishment potential.
2 bedroom detached bungalow for sale in Chelsfield Lane, Orpington, BR6 — £499,000 • 2 bed • 1 bath • 1259 ft²
3 bedroom bungalow for sale in Goddington Lane, Orpington, BR6 — £630,000 • 3 bed • 1 bath • 1074 ft²
3 bedroom bungalow for sale in Cheltenham Road, South Orpington, Kent, BR6 — £675,000 • 3 bed • 1 bath • 1146 ft²
5 bedroom detached house for sale in Chelsfield Lane, Orpington, Kent, BR6 — £1,250,000 • 5 bed • 3 bath • 2487 ft²
3 bedroom bungalow for sale in Court Road, Orpington, Kent, BR6 — £600,000 • 3 bed • 1 bath • 1108 ft²
3 bedroom detached bungalow for sale in Court Road, Orpington, BR6 — £550,000 • 3 bed • 2 bath • 1321 ft²






















































































