**Standout Features:**
- Twice extended detached family home
- Located in a desirable cul-de-sac on the castle side of Thornbury
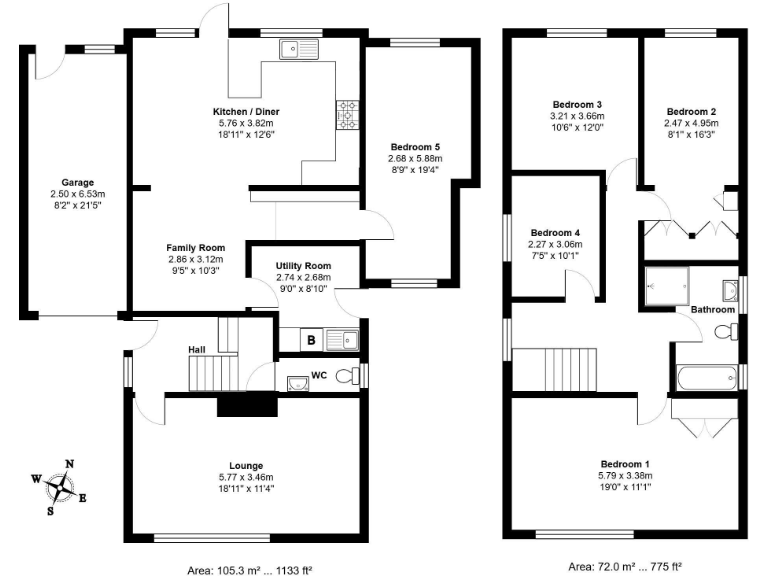
- Five spacious bedrooms, including a ground-floor option
- Three reception rooms for versatile living
- Kitchen/diner, utility room, and cloakroom
- Large gardens surrounding the property
- Garage and ample off-street parking
- Low crime area with fast broadband and good council amenities
**Potential Concerns:**
- Average maintenance expected for an ageing suburban home
Step into comfort and potential with this generously-sized, twice-extended detached family home, nestled in a tranquil cul-de-sac in sought-after Thornbury. With five bedrooms and multiple reception rooms, this property is perfect for families seeking space to grow. The well-appointed kitchen/diner encourages family gatherings, while the utility room and cloakroom add practicality for everyday living.
Enjoy the large gardens that surround the house, providing a great space for outdoor activities or gardening. Additional features include a garage and ample parking, ensuring convenience for all residents. The home is equipped with gas central heating and double glazing, enhancing energy efficiency.
Situated in a friendly neighborhood with easy access to good schools and local amenities, this home offers both comfort and a promising living experience. Take advantage of this rare opportunity—properties like this don’t stay on the market for long! Whether you're looking to settle down or seeking a space to infuse with your unique style, this home offers endless possibilities for personalization and future extensions. Don’t miss out on making this remarkable property your own!
5 bedroom detached house for sale in Victoria Close, Thornbury, BS35 — £499,500 • 5 bed • 2 bath • 1512 ft²
4 bedroom detached house for sale in Regents Close, Thornbury, BS35 — £465,000 • 4 bed • 1 bath • 1032 ft²
4 bedroom detached house for sale in Chantry Road, Thornbury, BS35 — £650,000 • 4 bed • 2 bath • 1528 ft²
4 bedroom detached house for sale in Millfield, Thornbury, Bristol, BS35 — £595,000 • 4 bed • 2 bath • 1346 ft²
3 bedroom detached house for sale in Thornbury, Nr Bristol, BS35 — £400,000 • 3 bed • 1 bath • 1047 ft²
4 bedroom detached house for sale in Maple Avenue, Thornbury, BS35 — £480,000 • 4 bed • 1 bath • 1579 ft²










































































































































