**Standout Features:**
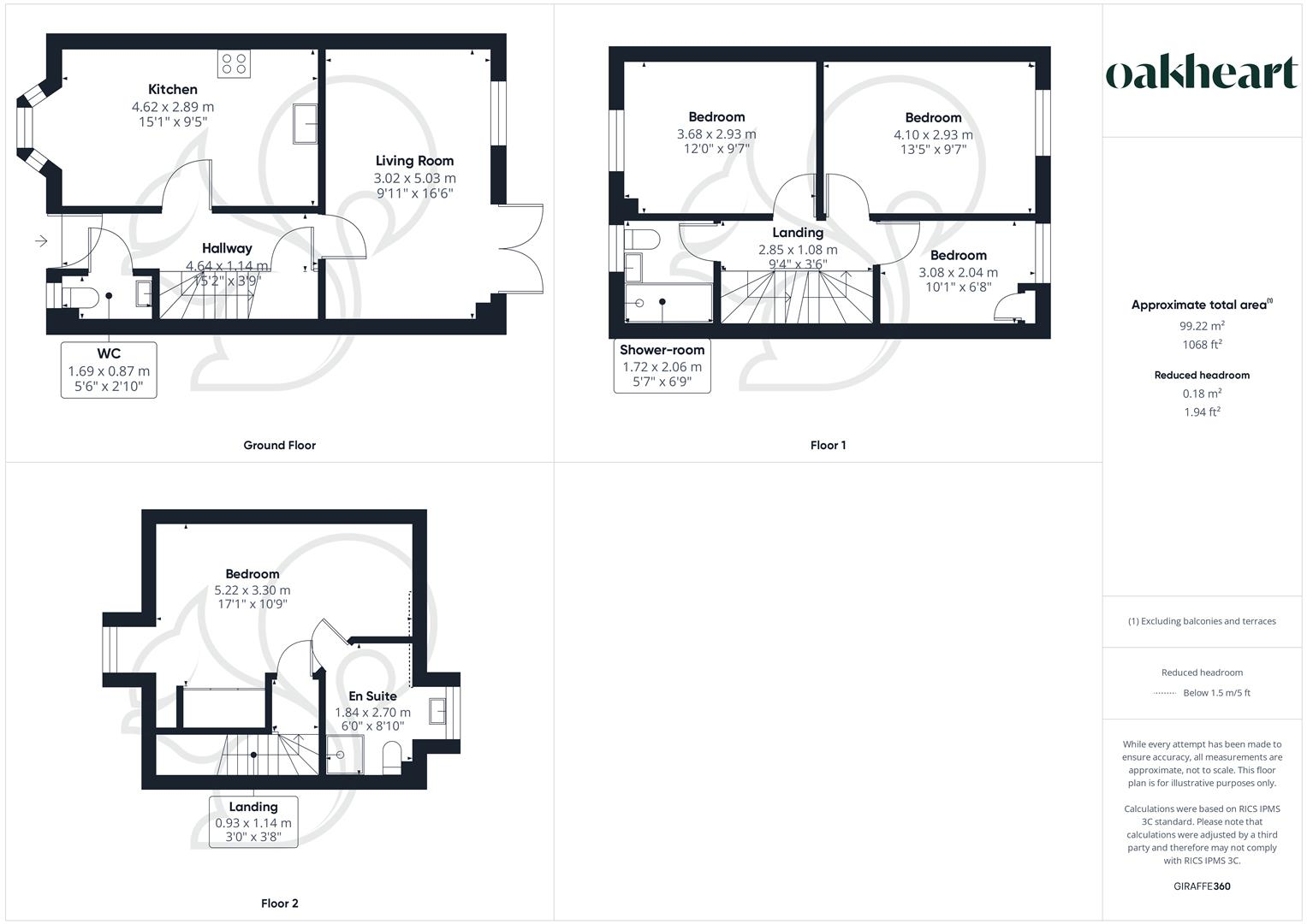
- **Four Generous Bedrooms:** Including a luxurious top-floor master suite with en suite bath.
- **Immaculate Presentation:** Modern finishes and light-filled rooms throughout.
- **Off-Street Parking and Garage:** Convenient access for vehicles and extra storage.
- **Family-Friendly:** Proximity to highly-rated schools and local amenities.
- **Low Maintenance Garden:** Perfect for outdoor entertaining.
**Potential Downsides:**
- Property requires ongoing maintenance typical of townhouse living.
Discover the perfect family home with this beautifully presented four-bedroom townhouse in the highly sought-after Woodlands Rise development of Great Cornard. With plenty of living space, this light and airy property has been impeccably maintained and features a generous top-floor master suite complete with bespoke fitted wardrobes and en suite bathroom. Enjoy a contemporary kitchen/diner that flows seamlessly into a spacious living room with French doors opening to a well-kept garden, ideal for both relaxation and entertaining.
Located within walking distance to reputable schools and local amenities, this townhouse is suited to families seeking a vibrant community. Additional advantages include off-street parking, a garage, and a low-maintenance garden space, providing both convenience and comfort. With its attractive price point of £325,000 - £335,000 and desirable location, this home won't last long on the market. Envision your family's future in this cozy yet stylish gem, where both comfort and potential await.
3 bedroom semi-detached house for sale in Kilby Way, Great Cornard, CO10 — £355,000 • 3 bed • 3 bath • 912 ft²
4 bedroom detached house for sale in Marshall Drive, Great Cornard, CO10 — £390,000 • 4 bed • 2 bath • 1163 ft²
4 bedroom detached house for sale in Grace Farrant Road, Great Cornard, CO10 — £400,000 • 4 bed • 3 bath • 1112 ft²
4 bedroom town house for sale in Mulberry Gardens, Great Cornard, CO10 — £300,000 • 4 bed • 2 bath • 1040 ft²
4 bedroom semi-detached house for sale in Grantham Avenue, Great Cornard, CO10 — £325,000 • 4 bed • 2 bath • 876 ft²
4 bedroom detached house for sale in Marshall Drive, Great Cornard, CO10 — £375,000 • 4 bed • 2 bath • 1193 ft²






















































































