Ideal starter home near Auchterarder centre with garden and renovation potential.
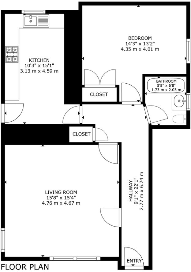
Freehold one-bedroom cottage, approx. 732 sq ft
This end-terraced cottage in Townhead offers a compact, characterful home ideal for a first-time buyer or downsizer. The single double bedroom and spacious living room benefit from large windows and natural light, creating a welcoming, comfortable layout across approximately 732 sq ft. The property is freehold, has a garden, and sits a short walk west of the town centre with local shops, transport and amenities nearby.
Built in the mid-20th century, the house retains period stonework and mid-century features but is dated in parts and would reward modest updating. The kitchen and bathroom are functional, and the home presents clear scope for refurbishment to improve energy performance (current EPC E) and modern comfort. Broadband speeds are average; mobile signal is excellent.
Practical positives include no flood risk, very low council tax, and straightforward ownership (freehold). Notable considerations: the property shows signs of wear consistent with a fixer-upper — cosmetic renewal and possible systems upgrades are likely. The surrounding area is in a more deprived classification, so buyers seeking strong neighbourhood investment should factor that in.
2 bedroom end of terrace house for sale in Churchill Place, Aberuthven, Auchterarder, PH3 — £175,000 • 2 bed • 1 bath • 350 ft²
3 bedroom end of terrace house for sale in Townhead, Auchterarder, PH3 — £195,000 • 3 bed • 1 bath • 973 ft²
1 bedroom flat for sale in Abbotsfield Terrace, Auchterarder, PH3 — £65,000 • 1 bed • 1 bath • 441 ft²
1 bedroom terraced house for sale in Burrell Street, Crieff, PH7 — £75,000 • 1 bed • 1 bath • 450 ft²
3 bedroom semi-detached house for sale in Front Street, Braco, FK15 — £329,000 • 3 bed • 2 bath • 1625 ft²
2 bedroom semi-detached house for sale in King Street, Crieff, PH7 — £160,000 • 2 bed • 1 bath • 904 ft²






























































