Sunlit balcony, lift access and fast City links, offered chain free.
South-facing private decked balcony with extensive glazing
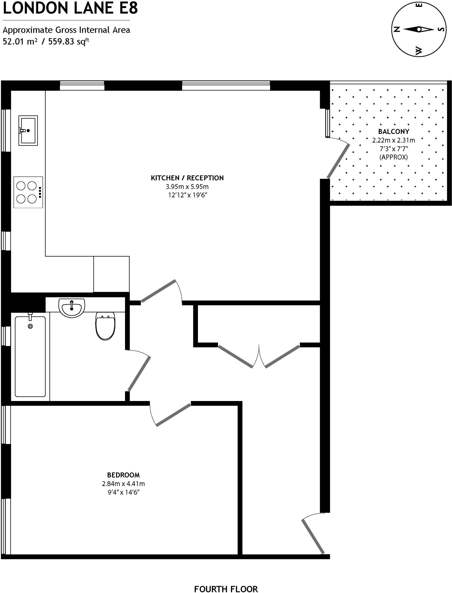
Bright fourth-floor apartment in a contemporary development beside London Fields, designed for easy urban living. An open-plan living area with extensive glazing and wood floors leads onto a south-facing decked balcony that brings sunlight into the space. The integrated kitchen and large storage cupboard make everyday living straightforward.
The principal bedroom is a good-sized double and the bathroom is stylishly finished. Practical features include a passenger lift, secure entryphone, communal gardens and secure bike storage — useful for city commuters. The property is offered chain-free and has a long lease (118 years), which supports mortgageability and resale.
Location is a key strength: London Fields Park, Broadway Market and Hackney Central/London Fields stations are within easy reach for fast City access, cafés and weekend leisure. Broadband and mobile signals are excellent, appealing to working professionals and tech-savvy buyers.
Be frank about local issues: the area records very high crime levels and is classed as deprived, which may affect some buyers’ perceptions and insurance or security costs. The flat is leasehold with a ground rent of £300 (average); communal maintenance standards appear good but buyers should confirm service charge details and running costs. Heating is provided by a mains-gas boiler and radiators.
1 bedroom apartment for sale in Well Street, London, E9 — £400,000 • 1 bed • 1 bath • 550 ft²
2 bedroom apartment for sale in Bocking Street, London Fields, E8 — £600,000 • 2 bed • 1 bath • 766 ft²
1 bedroom apartment for sale in Hacon Square, Richmond Road, London Fields, E8 — £400,000 • 1 bed • 1 bath • 517 ft²
1 bedroom flat for sale in Frampton Park Road, Hackney, London, E9 — £425,000 • 1 bed • 1 bath • 635 ft²
2 bedroom flat for sale in Martello Street, Hackney, E8 — £500,000 • 2 bed • 2 bath • 695 ft²
2 bedroom flat for sale in Frampton Park Road, London, E9 — £450,000 • 2 bed • 1 bath • 661 ft²














































































