Spacious Victorian apartment with Abbey views in central Hexham.
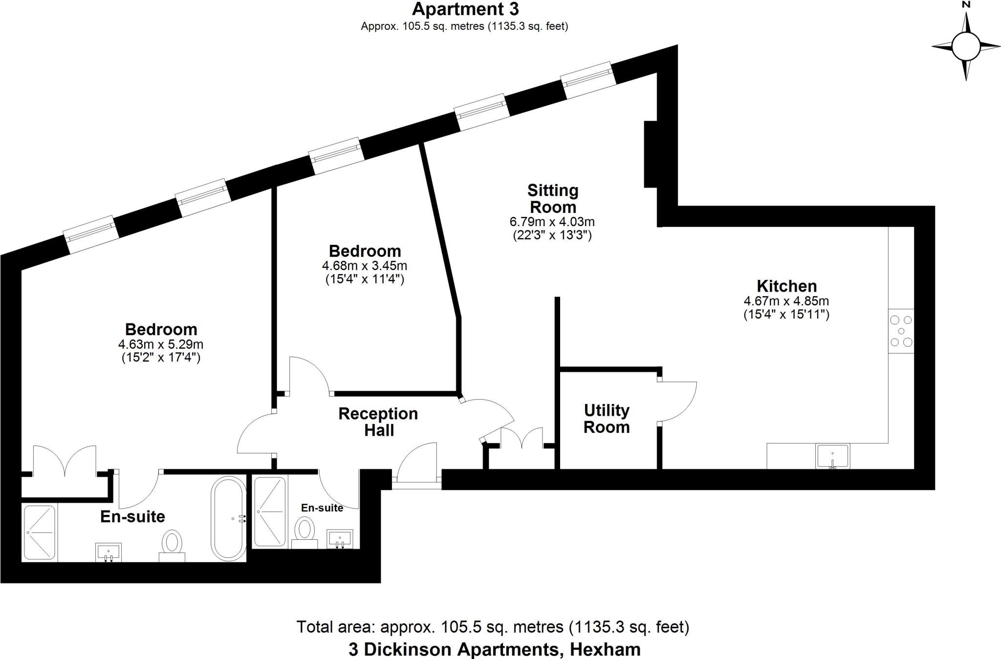
Large 1,135 sq ft two-bedroom apartment with high ceilings
Set within a handsome stone-built Victorian block, this large two-bedroom apartment blends period character with contemporary living. The bright open-plan kitchen and sitting room benefits from high ceilings and large windows, creating an airy space perfect for relaxed evenings or entertaining. A separate utility room adds practical storage and laundry convenience.
The principal bedroom features a well-appointed en-suite with both a freestanding bath and walk-in shower, while the versatile second double bedroom suits guests, a home office, or flexible living needs. Many rooms enjoy stunning views over Hexham Abbey, providing a unique and picturesque backdrop to daily life.
Practicalities are clear: the property is leasehold, with an average service charge of £1,100 and parking available only by separate negotiation. Broadband speeds are very slow locally, which may affect home-working; the EPC is C and council tax is described as cheap. Communal lift and traditional staircase provide access, and the apartment’s generous 1,135 sq ft footprint offers strong scope to personalise finishes.
Located in the heart of Hexham’s market town, the apartment sits close to shops, cafés, schools and transport links, combining a historic setting with everyday convenience. This home will appeal to downsizers or professionals seeking a centrally located, characterful residence with scope to further tailor interiors.
2 bedroom apartment for sale in Beaumont Street, Hexham, Northumberland, NE46 — £470,000 • 2 bed • 2 bath • 1209 ft²
2 bedroom apartment for sale in Beaumont Street, Hexham, Northumberland, NE46 — £275,000 • 2 bed • 2 bath • 787 ft²
1 bedroom apartment for sale in Beaumont Street, Hexham, Northumberland, NE46 — £220,000 • 1 bed • 1 bath • 677 ft²
2 bedroom apartment for sale in Beaumont Street, Hexham, Northumberland, NE46 — £470,000 • 2 bed • 2 bath • 1734 ft²
3 bedroom apartment for sale in 2 Dickinson Apartments, Beaumont Street, Hexham, Northumberland, NE46 — £495,000 • 3 bed • 3 bath • 1345 ft²
3 bedroom apartment for sale in Long Close, Hexham, Northumberland, NE46 — £275,000 • 3 bed • 2 bath • 1076 ft²


























































