Accessible, low-maintenance two-bed home with garden and parking.
Chain free linked-detached bungalow on a quiet no-through road
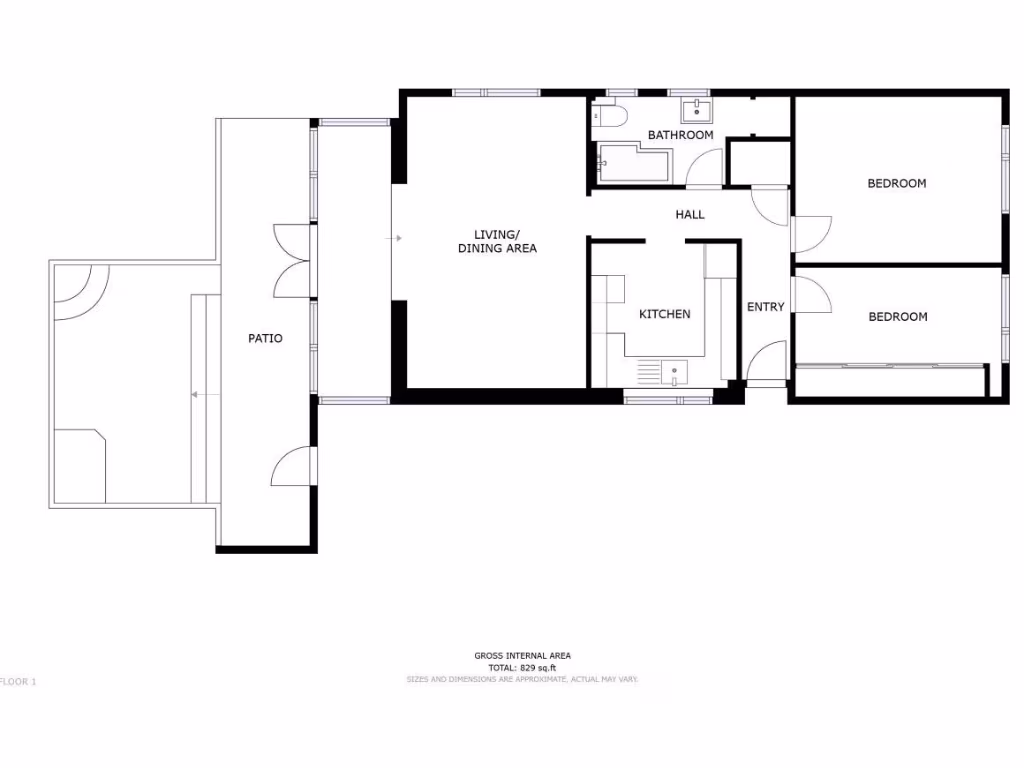
Set on a peaceful no-through road in Margate, this linked-detached 1960s bungalow offers single-storey living with a practical layout. The bright open-plan living and dining area flows to a conservatory and decent rear garden — ideal for relaxed, accessible living. Two generous double bedrooms and a modern bathroom with shower and bath complete the core accommodation.
The property is chain free and benefits from off-street parking for two cars, an integral garage cleverly converted to a utility room, gas central heating and double glazing. Broadband speeds are fast and the home sits in a small-town fringe location with good road links and seaside attractions nearby.
Important to note: the bungalow requires renovation and updating in places despite some modern touches in the kitchen and bathroom. The area records above-average crime and higher local deprivation, which should be weighed against the affordable council tax and overall size. There is no flooding risk.
This home will suit downsizers or buyers seeking a low-maintenance, single-storey property with scope to update and add value. With a measured renovation, it could become a comfortable, well-connected seaside retreat or a straightforward rental proposition.
3 bedroom bungalow for sale in St. Michaels Avenue, Margate, Kent, CT9 — £400,000 • 3 bed • 1 bath • 1067 ft²
2 bedroom bungalow for sale in Sycamore Close, Margate, CT9 — £300,000 • 2 bed • 1 bath • 657 ft²
2 bedroom detached bungalow for sale in Shottendane Road, Margate, CT9 — £315,000 • 2 bed • 1 bath • 1001 ft²
2 bedroom semi-detached bungalow for sale in Nash Lane, Margate, CT9 4EX, CT9 — £300,000 • 2 bed • 1 bath • 947 ft²
2 bedroom bungalow for sale in Borrowdale Avenue, Ramsgate, CT11 — £325,000 • 2 bed • 1 bath • 926 ft²
2 bedroom bungalow for sale in St. Andrews Close, Margate, Kent, CT9 — £300,000 • 2 bed • 1 bath • 671 ft²














































































