### Standout Features:
- Investment property with three contained living areas
- Income potential of £1,200 monthly from tenants
- Close proximity to Stockton Town Centre
- Freehold tenure with chain-free status
- On-street parking available
### Summary:
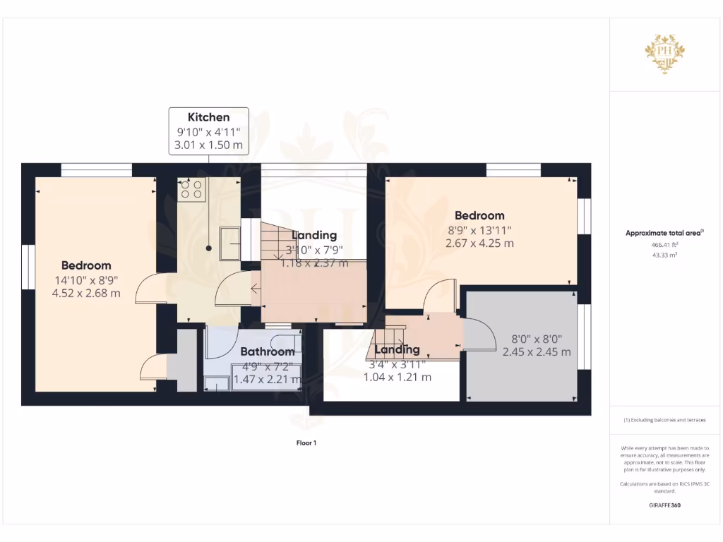
Discover a unique investment opportunity in Stockton with this end-of-terrace property featuring three functional living units. Currently generating an impressive income of £1,200 PCM, this setup offers significant potential for savvy investors looking to enhance their portfolio. Each unit is thoughtfully designed to maximize space and efficiency, with a cozy living area, equipped kitchen, and essential amenities providing a comfortable lifestyle for tenants.
While the property is located in an urban area with easy access to local amenities, it exists in a neighborhood classified as multi-ethnic hardship with a very high crime rate, and potential investors should be aware of these considerations. The exterior style is modern simplistic, emphasizing a minimalist aesthetic that appeals to contemporary tastes. Though maintenance may be needed to improve the condition of the property, its solid brick construction and double-glazed windows provide a strong foundation for future renovations.
This investment property is priced at £119,999, making it an affordable opportunity for first-time buyers or seasoned investors. Viewing is highly encouraged as properties of this caliber with rental potential at this price point do not stay on the market for long. Grab this chance to secure a stable income and explore the possibilities for future upgrades!
2 bedroom terraced house for sale in Kensington Road, Stockton-On-Tees, TS18 — £80,000 • 2 bed • 1 bath • 808 ft²
3 bedroom terraced house for sale in Palmerston Street, Stockton-on-Tees, TS18 1NU, TS18 — £75,000 • 3 bed • 1 bath • 741 ft²
4 bedroom terraced house for sale in Durham Road, Stockton-On-Tees, Durham, TS19 — £95,000 • 4 bed • 2 bath • 1335 ft²
6 bedroom block of apartments for sale in 140-144 Norton Road, Stockton-On-Tees, Durham, TS20 — £200,000 • 6 bed • 1 bath • 1818 ft²
1 bedroom flat for sale in Cardwell Walk, Stockton-On-Tees, TS17 — £50,000 • 1 bed • 1 bath • 538 ft²
2 bedroom terraced house for sale in Winston Street, Stockton-On-Tees, TS18 — £60,000 • 2 bed • 1 bath • 808 ft²


































































