Single‑storey living with garden, summer house and ample parking, chain free.
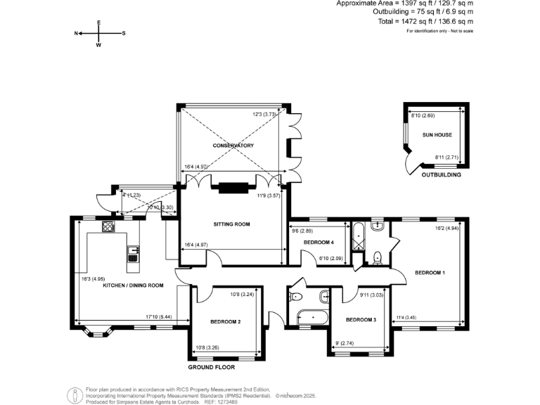
Detached four-bedroom bungalow, approximately 1,400 sq ft
Set on a generous plot in leafy Cobham, this detached four-bedroom bungalow offers single‑storey living with approximately 1,400 sq ft of accommodation. The house has been updated with a modern kitchen and contemporary bathrooms, double glazing and a large conservatory that floods the living space with light. Outside, the rear garden is landscaped with raised beds, a pergola and a summer house, while the paved driveway provides parking for several cars. No onward chain speeds a straightforward move.
The layout suits families, downsizers or those wanting ground‑floor living close to village amenities: Oxshott High Street is about 0.7 miles away and countryside walks are on the doorstep. Broadband and mobile signal are strong, and local crime levels are very low. There are several well‑regarded state and independent schools within easy reach.
Buyers should note practical running costs: council tax is described as quite expensive. The property dates from the 1930s–1940s, so while many modern elements are in place, prospective buyers should inspect for any age‑related maintenance. Overall, the bungalow combines good indoor space, outdoor privacy and convenient parking in a very affluent, well‑connected neighbourhood.
This home will suit someone seeking comfortable, single‑level living with scope to personalise while benefiting from a ready‑to‑move‑into kitchen and bathrooms and an attractive low‑maintenance garden.
3 bedroom detached house for sale in Heath Ridge Green, Cobham, Surrey, KT11 — £1,095,000 • 3 bed • 2 bath • 1858 ft²
3 bedroom bungalow for sale in Birch Grove, Cobham, Surrey, KT11 — £925,000 • 3 bed • 2 bath • 1800 ft²
4 bedroom bungalow for sale in Birch Grove, Cobham, KT11 — £1,395,000 • 4 bed • 2 bath • 2000 ft²
3 bedroom detached bungalow for sale in Appletree Close, Fetcham, KT22 — £880,000 • 3 bed • 2 bath • 1302 ft²
3 bedroom bungalow for sale in Fairmile Lea, Cobham, Surrey, KT11 — £1,100,000 • 3 bed • 2 bath • 2000 ft²
3 bedroom bungalow for sale in Four Wents, Cobham, KT11 — £1,000,000 • 3 bed • 2 bath • 1281 ft²


























































