Modern village family home with garage and enclosed garden.
4 bedrooms including ensuite to master|Open-plan kitchen-diner with integrated Bosch appliances|Detached single garage and driveway; EV charging ready|Enclosed rear garden with patio and lawn|Freehold, brand-new construction, low-maintenance finish|Modest overall internal size (~903 sq ft) for a four-bed|Very slow broadband in the area; may affect home working|Appliances/services untested — buyers advised to survey
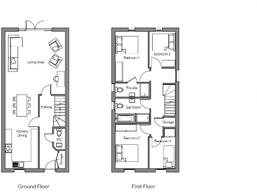
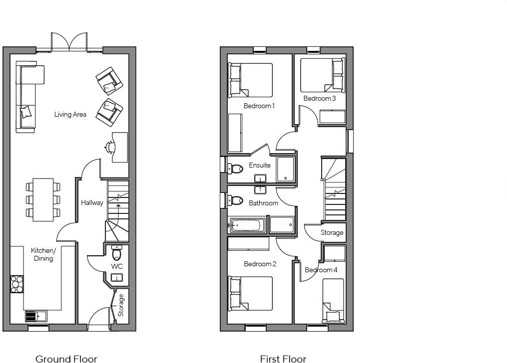
This brand-new four-bedroom detached house on Medland Drive offers move-in-ready family living in the sought-after village of Bracebridge Heath. The ground floor features an open-plan kitchen-diner with integrated Bosch appliances and quartz worktops, a separate lounge with patio doors to an enclosed rear garden, plus a convenient WC. Upstairs provides a generous master with ensuite, three further bedrooms and a family bathroom.
Practical benefits include a driveway, detached single garage with an upgraded distribution board for straightforward EV charging, front and rear security lighting, and a decent-sized plot with lawn and patio. The property is freehold, newly constructed and finished to a contemporary specification ideal for families who want low-maintenance, modern accommodation close to amenities and good schools.
Buyers should note the property’s overall internal size is modest at about 903 sq ft, meaning rooms follow new-build proportions rather than expansive Victorian dimensions. Broadband is reported as very slow in the area, which may affect home working without alternative connectivity solutions. Services and appliances have not been independently tested and prospective purchasers are advised to arrange their own surveys.
This home suits purchasers seeking a straightforward, modern family house in a quiet, affluent village setting with easy access to transport links and local schools. Early viewing is recommended to appreciate the layout, specification and location.
4 bedroom detached house for sale in Medland Drive, Bracebridge Heath, Lincoln, LN4 — £330,000 • 4 bed • 2 bath • 1086 ft²
4 bedroom detached house for sale in Appian Way, Bracebridge Heath, LN4 — £285,000 • 4 bed • 2 bath • 1187 ft²
3 bedroom semi-detached house for sale in Medland Drive, Bracebridge Heath, Lincoln, LN4 — £300,000 • 3 bed • 2 bath • 766 ft²
4 bedroom detached house for sale in Adler Close, Bracebridge Heath, Lincoln, LN4 — £350,000 • 4 bed • 2 bath • 333 ft²
3 bedroom detached house for sale in Rochester Close, Bracebridge Heath, Lincoln, LN4 — £299,950 • 3 bed • 2 bath • 1292 ft²
4 bedroom detached house for sale in Goldcrest Avenue, Branston, Lincoln, LN4 — £375,000 • 4 bed • 3 bath • 1512 ft²






































































