**Standout Features:**
- Beautifully presented Victorian terraced house, circa 1880
- No onward chain, ideal for quick occupation
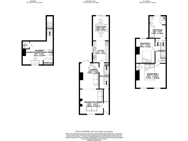
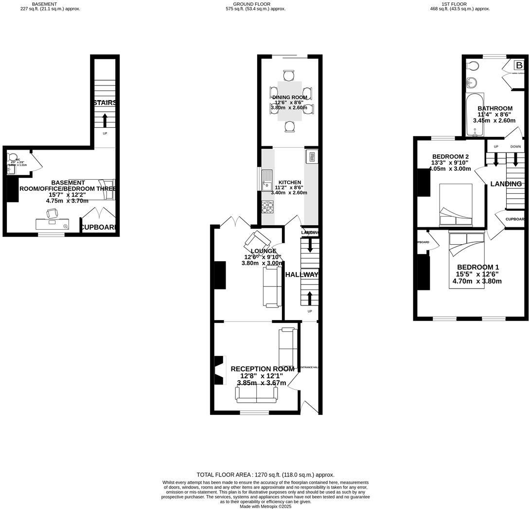
- Two large double bedrooms; potential for a third bedroom/office in the basement
- Spacious family bathroom plus a convenient downstairs WC
- Extended kitchen/diner with built-in island and integrated appliances
- Open-plan reception room and lounge featuring original fireplaces
- Low-maintenance garden with patio and potential for a summerhouse
- Proximity to historic high street, restaurants, and fast train services to London
This exquisite Victorian terraced home in the desirable "Bishops Square" of Rochester combines classic charm with modern family living. Perfectly blending original character features with contemporary design, it boasts two spacious double bedrooms, a large family bathroom, and a stunning extended kitchen/diner that is ideal for entertaining. The open-plan living area invites comfort and warmth, complemented by two feature fireplaces and original exposed floorboards.
Potential buyers will appreciate the versatility offered by the basement room, currently utilized as an office but easily convertible into a third bedroom as needed. The low-maintenance garden provides a serene outdoor space perfect for family gatherings or relaxing evenings. Nestled just a short walk from esteemed schools, historic sites, cafes, and transport links, this home presents a unique opportunity for families and first-time buyers alike.
With the market in this sought-after area heating up, viewing at your earliest convenience is highly recommended to seize this remarkable chance before it’s gone!
3 bedroom terraced house for sale in Ridley Road, Rochester, ME1 — £445,000 • 3 bed • 1 bath • 1400 ft²
4 bedroom terraced house for sale in Maidstone Road, Rochester, ME1 — £500,000 • 4 bed • 2 bath • 1744 ft²
5 bedroom terraced house for sale in Maidstone Road, Rochester, Kent, ME1 — £600,000 • 5 bed • 2 bath
2 bedroom terraced house for sale in Baker Street, Rochester, ME1 — £250,000 • 2 bed • 1 bath • 806 ft²
3 bedroom terraced house for sale in Sidney Road, ROCHESTER, ME1 — £280,000 • 3 bed • 1 bath • 969 ft²
5 bedroom detached house for sale in Maidstone Road, Rochester, ME1 — £665,000 • 5 bed • 2 bath • 1884 ft²






















































































































