Large city-centre plot for investors or developers ready to refurbish and repurpose.
148 sqm (1,589 sqft) two-storey warehouse with four off-street parking spaces
Freehold title; short walk to Norwich city centre shops and amenities
Flexible commercial uses; residential conversion possible subject to planning (stpp)
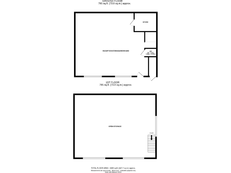
Ground floor: workshop, office and WC; first floor: open-plan with separate access
Requires refurbishment and adaptation to realise potential; indicative schemes exist
High crime and very deprived local area — consider security and letting demand
Buyer fees: £1,200 admin and £600 buyer’s premium payable on exchange
Current business rates c. £9,900 (from 1 April 2023)
This two-storey freehold warehouse in Pottergate offers 148 sqm (1,589 sqft) of flexible space with four off-street parking spaces and direct access from an adjoining road. Positioned a short walk from Norwich city centre, the building suits a range of commercial uses or, subject to planning permission (stpp), potential conversion to residential use. Indicative schemes have been prepared.
The property is offered for sale by livestream auction with a guide price of £140,000 to £160,000. Note there are purchaser charges payable on exchange: an administration fee of £1,200 (inc VAT) and a buyer’s premium of £600 (inc VAT). Current business rates are around £9,900 (from 1 April 2023).
The building requires refurbishment and adaptation to realise new uses; the interior includes ground-floor workshop, office and WC, with a fully open-plan first floor. The surrounding area is a busy, cosmopolitan inner-city neighbourhood with excellent mobile and fast broadband, but it also records very high crime and is classified as very deprived — factors that will affect certain occupiers and valuation.
Suitable buyers include investors seeking a city-centre commercial asset with upside, or developers and creative occupiers prepared to manage planning and refurbishment risk. Legal packs and bidding instructions are available ahead of the livestream auction scheduled for 10:00am on Wednesday 10 December 2025.
Block of apartments for sale in 14 Willow Lane, Norwich, Norfolk NR2 1EU, NR2 — £300,000 • 1 bed • 1 bath • 1371 ft²
Commercial property for sale in St. John Ambulance, 59 King Street, Norwich, NR1 — £325,000 • 1 bed • 1 bath • 2759 ft²
Land for sale in Land and building to the rear of, 185 Yarmouth Road, Norwich, Norfolk NR7 0SQ, NR7 — £20,000 • 1 bed • 1 bath • 656 ft²
Mixed use property for sale in Upper St. Giles Street, Norwich, NR2 — £120,000 • 1 bed • 1 bath • 2455 ft²
Out-of-town retail property for sale in 71-73 New Botolph Street, Norwich, Norfolk, NR3 — £550,000 • 1 bed • 1 bath • 6567 ft²
Office for sale in Westwick Street, Norwich, NR2 — £850,000 • 1 bed • 1 bath






























