Spacious family living with large garden, studio and energy-saving solar setup.
- Extended detached home with over 2,000 sq ft of accommodation
- Quiet cul-de-sac location with attractive field views
- Solar panel array with Tesla battery reduces electricity costs
- Open-plan rear extension with high ceilings and bi-fold doors
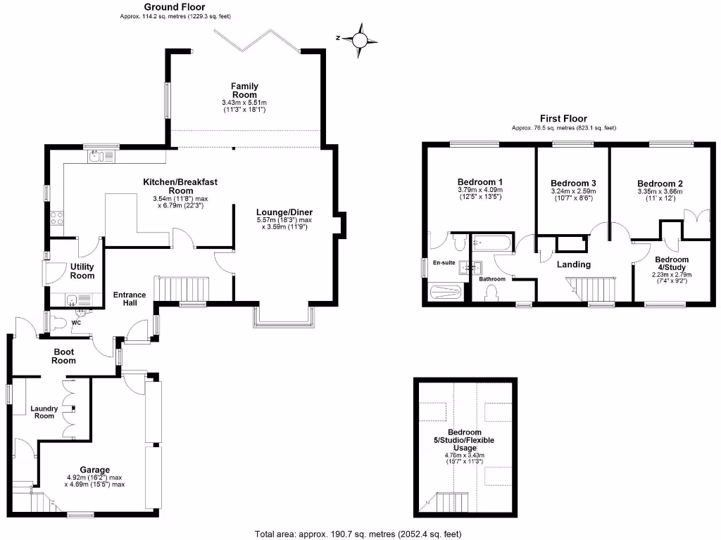
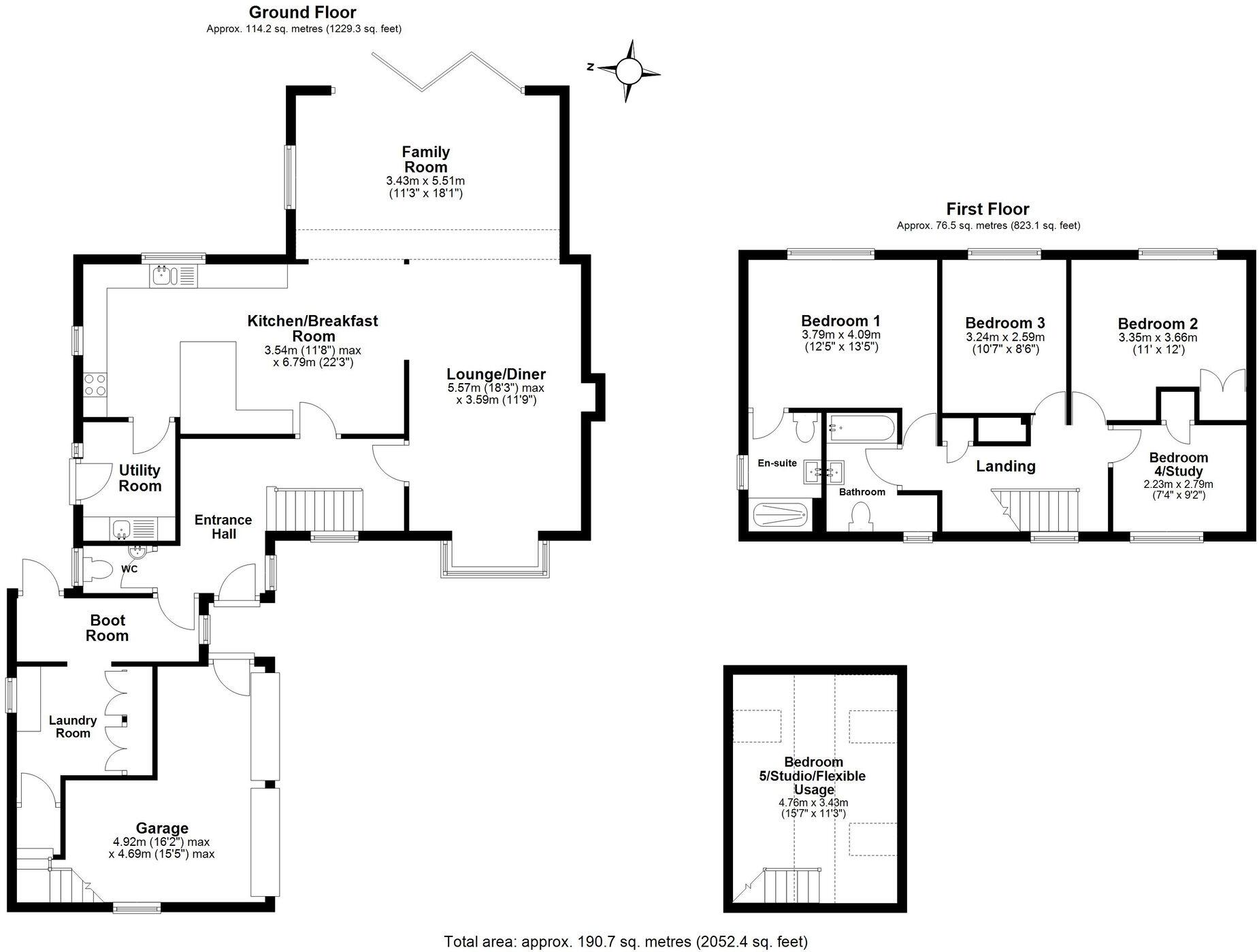
- Utility, boot room and separate laundry for practical family use
- Studio above garage provides flexible fifth bedroom or office
- Heating by oil boiler; consider ongoing fuel and servicing costs
- Council tax band is expensive; budget for higher annual costs
This extended detached house sits at the end of a quiet cul-de-sac and offers more than 2,000 sq ft of well-presented family living with attractive field views. The rear extension provides high ceilings and large windows that create a bright open-plan kitchen, family and dining area ideal for day-to-day family life and entertaining. A versatile studio above the garage can be used as a fifth bedroom, home office or playroom.
Practical spaces include a utility, boot room and separate laundry room, plus a single garage with an attached workshop and generous driveway parking for several vehicles. The property benefits from a large enclosed garden laid mainly to lawn with mature orchard trees and a paved terrace that takes full advantage of the rural outlook. Solar panels with a Tesla battery significantly reduce electricity bills and support energy-efficient running.
Important points to note: heating is via an oil-fired boiler and the council tax band is high, which will affect ongoing running costs. The install dates for the double glazing are not recorded. The home was built in the 1980s and, while presented well, buyers should allow for typical maintenance and potential modernisation over time.
Overall, this is a spacious, flexible family home in a prosperous village setting with excellent kerb appeal, low local crime and fast broadband. It will suit growing families who value outdoor space, countryside views and energy-efficient solar generation, while accepting the trade-offs of oil heating and higher local taxes.
3 bedroom link detached house for sale in Brookside, Orwell, SG8 — £420,000 • 3 bed • 2 bath • 1115 ft²
3 bedroom semi-detached house for sale in Meadowcroft Way, Orwell, SG8 — £390,000 • 3 bed • 2 bath • 1312 ft²
5 bedroom detached house for sale in Town Green Road, Orwell, Royston, SG8 — £750,000 • 5 bed • 2 bath • 1467 ft²
3 bedroom semi-detached house for sale in Hurdleditch Road, Orwell, Royston, SG8 — £400,000 • 3 bed • 1 bath • 776 ft²
4 bedroom detached house for sale in Greenford Close, Orwell, Royston, Herts, SG8 — £725,000 • 4 bed • 2 bath • 2101 ft²
2 bedroom detached house for sale in West Croft, Orwell, Royston, Cambridgeshire,, SG8 — £420,000 • 2 bed • 2 bath • 879 ft²


























































































































