Roomy three-bed home with garage and low-maintenance garden.
Chain free — immediate possession possible
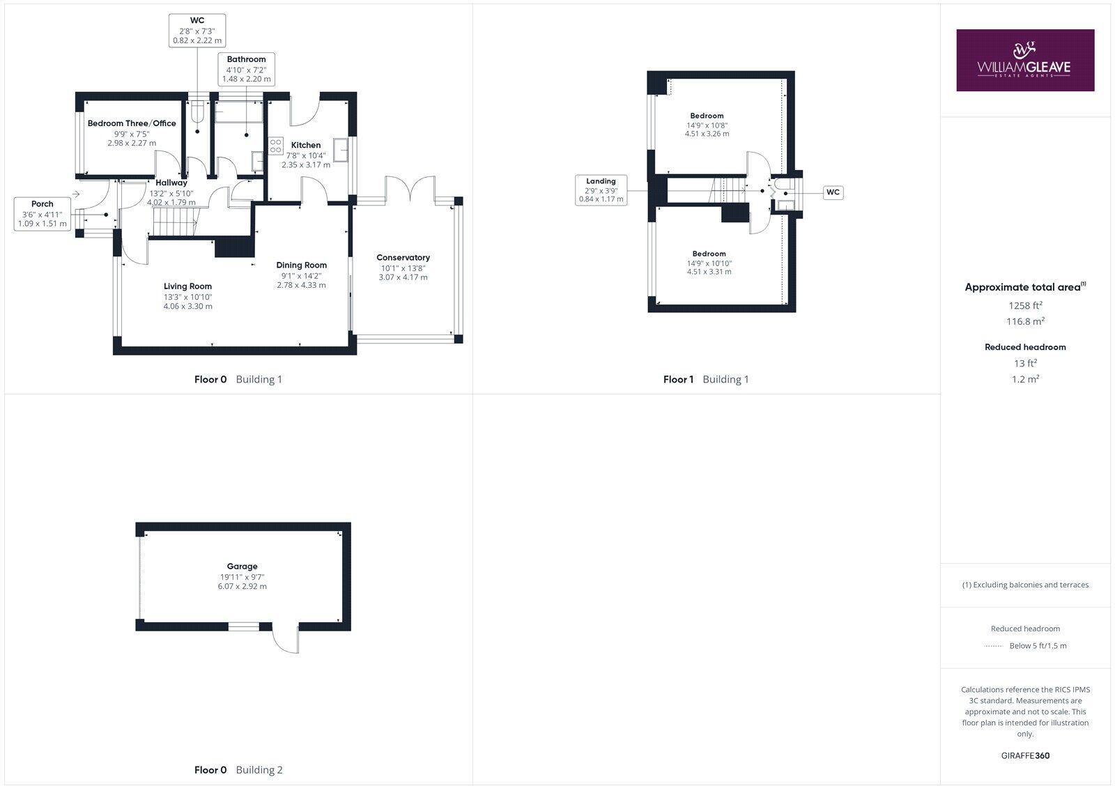
This chain-free, versatile dormer-style semi offers a practical first home or downsizer’s option in a well-established Connah’s Quay street. The layout includes a roomy open-plan lounge/diner, a conservatory that extends living space, a flexible ground-floor room suitable as a home office or third bedroom, and two double bedrooms upstairs. A detached garage, carport and driveway provide abundant off-road parking.
The property sits on a decent plot with a low-maintenance rear garden and a paved patio — easy to enjoy or maintain without major upkeep. At about 1,258 sq ft overall, the house feels larger than many local alternatives and benefits from fast broadband, excellent mobile signal and very low local crime.
Practical considerations: the house is a mid-20th-century build with standard ceiling heights and will likely repay updating in places; it is presented with renovation potential rather than recent high-end refurbishments. The wider area shows signs of economic deprivation, which may affect long-term resale premiums despite the strong local amenities and good road links.
Viewing is recommended to appreciate the scale, layout flexibility and parking. For a first-time buyer or someone looking to downsize, this home offers immediate occupation, scope to personalise and straightforward outdoor space without heavy maintenance.
3 bedroom semi-detached house for sale in Deans Place, Connahs Quay, CH5 — £160,000 • 3 bed • 1 bath • 732 ft²
3 bedroom semi-detached house for sale in Kent Road, Connah's Quay, CH5 — £175,000 • 3 bed • 1 bath • 861 ft²
3 bedroom bungalow for sale in Clivedon Road, Connah's Quay, Deeside, Flintshire, CH5 — £190,000 • 3 bed • 1 bath • 981 ft²
3 bedroom semi-detached house for sale in Mayfield Drive, Buckley, Flintshire, CH7 — £200,000 • 3 bed • 1 bath • 761 ft²
3 bedroom detached bungalow for sale in Gwylan Avenue, Connah's Quay, Deeside, Flintshire, CH5 — £210,000 • 3 bed • 1 bath • 1081 ft²
3 bedroom bungalow for sale in Halkyn View, Connah's Quay, Deeside, Flintshire, CH5 — £220,000 • 3 bed • 1 bath • 838 ft²






























































































































