Versatile ten-bedroom property with extensive gardens and garage, ideal for large families or multi-use living.
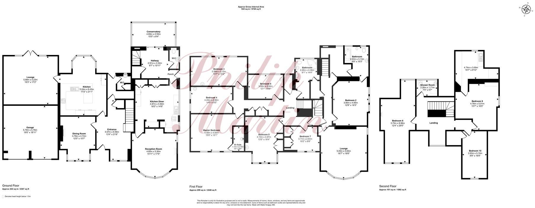
Ten bedrooms across three floors, currently two self-contained dwellings
Penvearn is a substantial early-20th-century detached house arranged over three floors, set in grounds approaching an acre and within easy walking distance of Redruth town centre. The main house and east wing currently function as two self-contained units, offering immediate flexibility for a large family, multi-generational living or rental income. High ceilings, bay windows and many original features create generous, characterful reception spaces.
Accommodation includes ten bedrooms, four reception rooms, conservatory and a useful top floor of three rooms with kitchenette — adaptable as guest suites, home offices or an independent apartment (subject to consents). Outside there is a sweeping granite-gated drive, double garage, detached garage/workshop, ample parking and large established gardens with patios and wooded screening.
Practical considerations include the solid brick construction (originally uninsulated) and double glazing fitted before 2002, so some thermal upgrading could be beneficial. The electrical circuit, appliances and heating system have not been tested; buyers should allow for services checks and potential modernization. There may be localized maintenance or roof work required given the property age.
Overall this is a rare, character-rich house on a very large plot offering scope to return to a single grand family home, continue as two dwellings, or explore sensitive subdivision/letting subject to planning. Its location close to schools, rail links and local amenities adds everyday convenience to the estate’s privacy and space.
5 bedroom detached house for sale in Clinton Road, Redruth, Cornwall, TR15 — £695,000 • 5 bed • 2 bath • 3000 ft²
4 bedroom terraced house for sale in Tregony, TR2 — £695,000 • 4 bed • 3 bath • 2500 ft²
4 bedroom house for sale in Trewirgie Hill, Redruth - Beautifully Presented Detached Family Home, TR15 — £615,000 • 4 bed • 2 bath • 2172 ft²
4 bedroom detached house for sale in Carvoza Road, Truro, TR1 — £595,000 • 4 bed • 2 bath • 2460 ft²
4 bedroom semi-detached house for sale in Penventon Terrace, Redruth, TR15 — £269,950 • 4 bed • 1 bath • 1335 ft²
4 bedroom detached house for sale in Trewirgie Road, Redruth, Cornwall, TR15 2SX, TR15 — £600,000 • 4 bed • 2 bath • 2027 ft²


















































































































