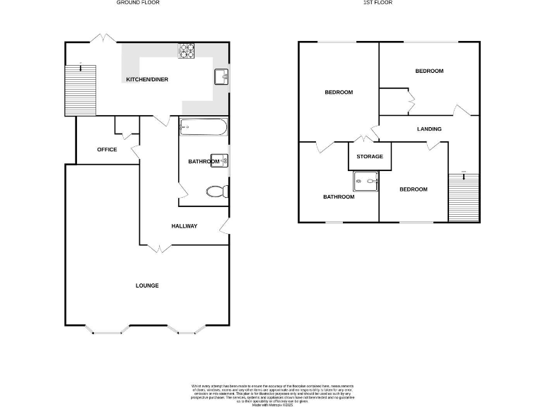
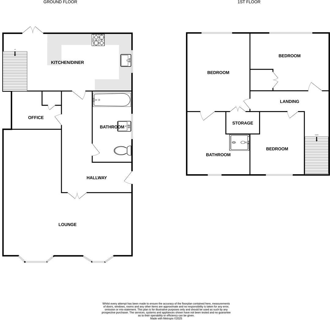
**Standout Features:**
- Spacious three-bedroom semi-detached layout.
- Two bathrooms: one on each floor.
- Generous lounge with two bay windows.
- Large kitchen/diner with high-quality integrated appliances.
- Dedicated home office/study perfect for remote work.
- Expansive private garden with paved patio and lawn.
- Ample off-street parking and a garage.
- Close proximity to local shops, amenities, and Rayleigh train station.
- Chain-free and in good condition.
This impressive three-bedroom semi-detached house in Rayleigh offers a perfect blend of spacious living and modern convenience, ideal for families and professionals alike. The ground floor features a welcoming entrance hallway leading to a light-filled lounge, complemented by two bay windows that create a warm atmosphere. The heart of the home is the contemporary kitchen and dining area, equipped with premium integrated appliances and direct access to the neatly landscaped garden, making entertaining a breeze.
Upstairs, you'll find three generous bedrooms and a second family bathroom, ensuring ample space for comfort and privacy. Outside, the property boasts a well-maintained garden, perfect for relaxing or family activities, along with a large driveway and detached garage, offering plenty of off-street parking. Located within walking distance to Rayleigh train station and surrounded by essential local amenities, this home is not just a property, but a lifestyle choice that presents exciting potential for future enhancements. Don't miss your chance to own this versatile home in a highly sought-after neighborhood!
3 bedroom semi-detached house for sale in High Mead, Rayleigh, SS6 — £475,000 • 3 bed • 2 bath • 1061 ft²
3 bedroom semi-detached house for sale in Warwick Gardens, Rayleigh, SS6 — £400,000 • 3 bed • 1 bath • 1303 ft²
3 bedroom semi-detached house for sale in Truro Crescent, Rayleigh, SS6 — £400,000 • 3 bed • 2 bath • 811 ft²
3 bedroom semi-detached house for sale in Love Lane, Rayleigh, SS6 — £400,000 • 3 bed • 1 bath • 872 ft²
3 bedroom semi-detached house for sale in Regent Close, Rayleigh, SS6 — £375,000 • 3 bed • 2 bath • 1037 ft²
3 bedroom semi-detached house for sale in Love Lane, Rayleigh, SS6 — £385,000 • 3 bed • 1 bath • 808 ft²


























































































