Contemporary family home with garage, garden and NHBC warranty.
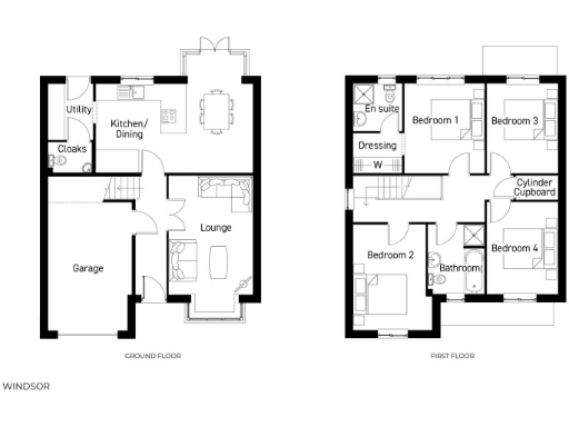
Four double bedrooms including master with en-suite and fitted wardrobes
This four-double-bedroom detached home on Kirklington Road is designed for family life, with a bright lounge, contemporary open-plan kitchen/dining and private garden access via French doors. The generous master bedroom includes fitted Hammonds wardrobes and an en-suite, while three further double bedrooms provide flexible space for children, guests or a home office.
Practical living is well catered for: there’s a separate utility, downstairs WC, integral single garage and a double block-paved driveway. The house benefits from energy-efficient construction and an NHBC 10-year warranty, which should reduce running costs and provide added peace of mind for buyers.
The property sits in a small-town, town-fringe setting within the Bilsthorpe Chase development, offering countryside calm with commuter links and local amenities nearby. Fast broadband and average mobile signal suit remote working and family connectivity; local schools include several rated Good and one ranked in the top 10%.
Important practical notes: some specification details appear inconsistent in the paperwork (bathroom count differs between documents) — buyers should confirm exact bathroom numbers and tenure. Images may be illustrative; confirm internal finishes and measurements on site before exchange.
4 bedroom terraced house for sale in Bilsthorpe Chase
Kirklington Road
Bilsthorpe
NG22 8SH, NG22 — £425,000 • 4 bed • 1 bath • 1204 ft²
4 bedroom detached house for sale in Bilsthorpe Chase
Kirklington Road
Bilsthorpe
NG22 8SH, NG22 — £321,000 • 4 bed • 1 bath • 837 ft²
4 bedroom detached house for sale in Bilsthorpe Chase
Kirklington Road
Bilsthorpe
NG22 8SH, NG22 — £376,000 • 4 bed • 1 bath • 1199 ft²
4 bedroom detached house for sale in Bilsthorpe Chase
Kirklington Road
Bilsthorpe
NG22 8SH, NG22 — £396,000 • 4 bed • 2 bath • 1123 ft²
5 bedroom detached house for sale in Bilsthorpe Chase
Kirklington Road
Bilsthorpe
NG22 8SH, NG22 — £458,000 • 5 bed • 1 bath • 1374 ft²
3 bedroom semi-detached house for sale in Bilsthorpe Chase
Kirklington Road
Bilsthorpe
NG22 8SH, NG22 — £233,000 • 3 bed • 1 bath • 634 ft²






































