**Standout Features:**
- Luxury one-bedroom lodge located in the desirable Southern Halt development
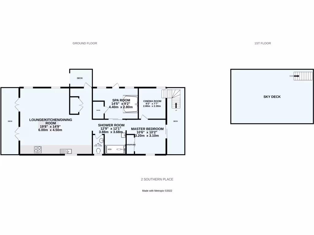
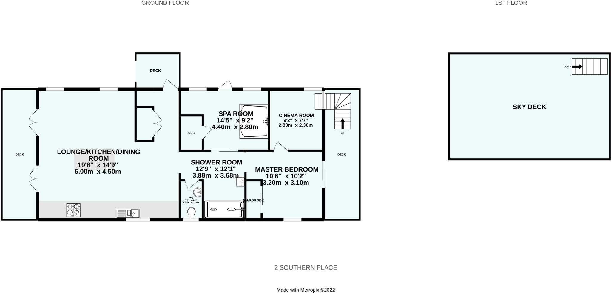
- 19' open plan lounge/kitchen/dining area with large windows
- Spa room featuring a sauna and jacuzzi bath
- Dedicated cinema room for entertainment
- Stunning sky deck providing 360-degree panoramic views
- Private, generous plot with ample outdoor space and decking
- Off-street parking available
- Fast broadband and excellent mobile signal
**Summary:**
Escape to luxury with this exquisite one-bedroom lodge, a perfect blend of comfort and modern design. Featuring an inviting 19' open plan lounge, a spa room complete with a jacuzzi and sauna, and a dedicated cinema room, this property redefines relaxation and entertainment. The shining highlight is the rooftop deck, offering sweeping 360-degree views over the idyllic countryside—perfect for those serene evenings.
Set on a large private plot amidst lush greenery, this lodge presents an opportunity to immerse yourself in nature while enjoying modern conveniences. Ideal for first-time buyers seeking a tranquil retreat or investors looking for rental potential, this property is both a sanctuary and an investment. With off-street parking and the peace of mind associated with a very low crime rate, comfort and security meet luxury in this delightful lodge. Act quickly; opportunities like this in such a coveted location don’t last long!
2 bedroom bungalow for sale in Southern Halt, Havett Road, Dobwalls, Liskeard, Cornwall, PL14 — £190,000 • 2 bed • 2 bath • 900 ft²
2 bedroom bungalow for sale in Lodge At Southern Halt, Dobwalls, PL14 — £150,000 • 2 bed • 2 bath
2 bedroom bungalow for sale in Havett Road, Dobwalls, Liskeard, Cornwall, PL14 — £200,000 • 2 bed • 1 bath • 900 ft²
2 bedroom lodge for sale in Horizon View, Southern Halt, PL14 — £150,000 • 2 bed • 2 bath • 723 ft²
3 bedroom bungalow for sale in Havett Road, Dobwalls, Liskeard, Cornwall, PL14 — £235,000 • 3 bed • 2 bath • 900 ft²
2 bedroom detached house for sale in St. Martin, Looe, Cornwall, PL13 — £277,995 • 2 bed • 2 bath






















































