**Standout Features:**
- Modern one-bedroom ground floor apartment in the city center
- Excellent condition with no onward chain
- Secure intercom entry and electric heating
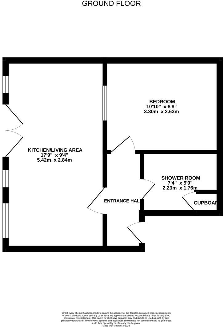
- Open plan kitchen/living area with natural light
- Leasehold tenure: 121 years remaining, with low service charges
- Ideal for first-time buyers or investors
- Vibrant location, close to amenities, schools, and transport links
**Summary:**
Discover this stylish one-bedroom ground floor apartment located in the vibrant heart of Norwich city center, perfect for first-time buyers or savvy investors. This well-presented unit features a secure intercom entry, a bright open-plan kitchen and living space with abundant natural light, and a modern shower room. The contemporary design includes double glazing and electric heating, ensuring comfort and efficiency.
While compact at 304 square feet, the layout effectively maximizes space, providing a cozy yet functional living environment. The surrounding area boasts a wealth of amenities, from boutique shops and restaurants to excellent transport links, placing everything you need right at your doorstep. This apartment, offered chain-free and in excellent condition, provides a unique opportunity that you won't want to miss—act fast to secure your city-center haven!
1 bedroom apartment for sale in 23, Cattle Market Street, Norwich, NR1 — £140,000 • 1 bed • 1 bath • 497 ft²
1 bedroom apartment for sale in Cattle Market Street, Norwich, NR1 — £145,000 • 1 bed • 1 bath • 463 ft²
1 bedroom apartment for sale in Sentinel House, Surrey Street, Norwich, Norfolk, NR1 — £140,000 • 1 bed • 1 bath • 384 ft²
1 bedroom flat for sale in Throckmorton Yard, Norwich, NR3 — £120,000 • 1 bed • 1 bath • 453 ft²
1 bedroom apartment for sale in Thorpe Road, Norwich, NR1 — £140,000 • 1 bed • 1 bath • 388 ft²
1 bedroom apartment for sale in Cattle Market Street, Norwich, Norfolk, NR1 — £160,000 • 1 bed • 1 bath • 424 ft²






























