Single-level living with modern finishes and easy commuter access.
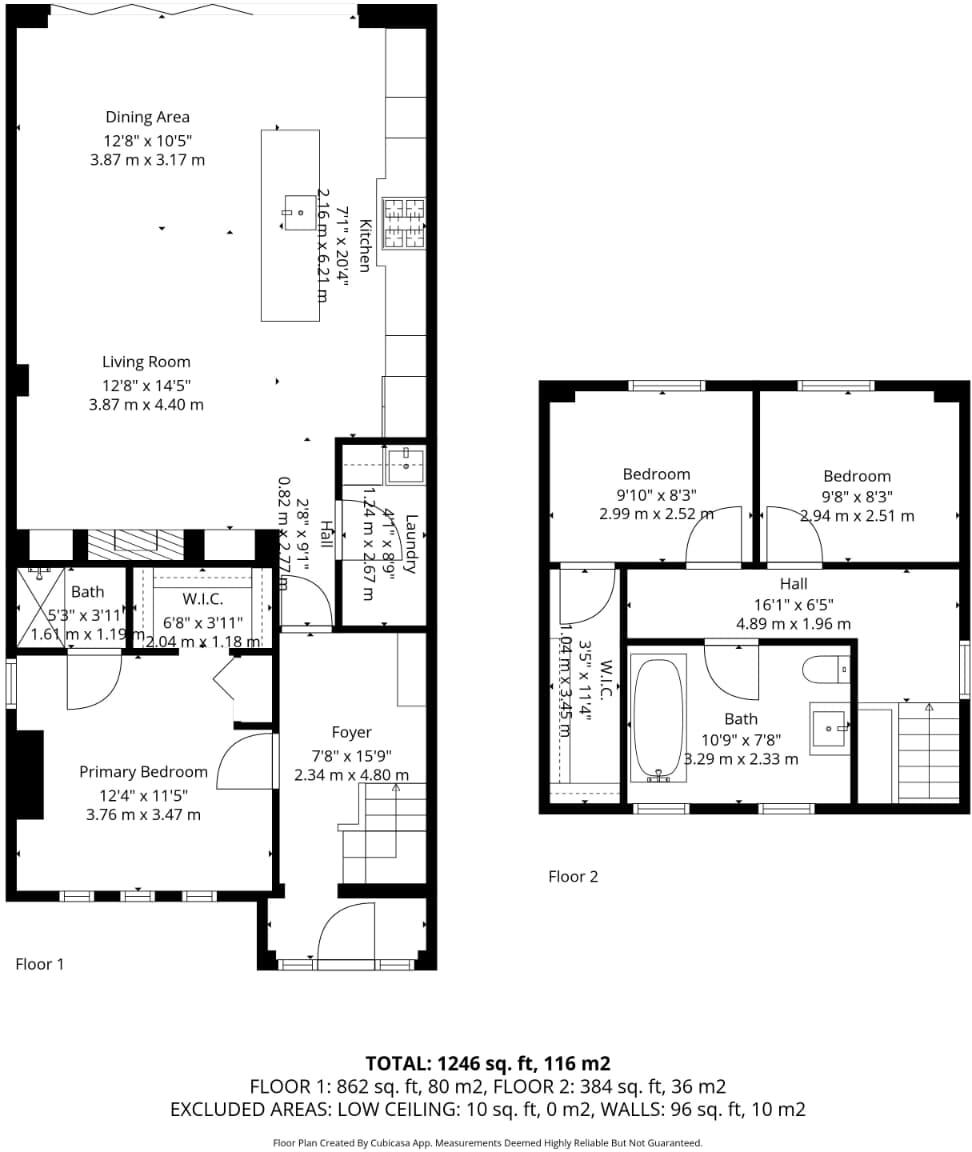
- Extended single-storey layout over 1,000 sq ft
- Master bedroom with en-suite and Juliet balconies
- Full-width bi-fold doors to contemporary rear garden
- Large driveway providing multiple off-street parking spaces
- Freehold tenure, EPC rating C, council tax band D
- Fast broadband and excellent mobile signal, good commuter links
- Two nearby primary schools with lower Ofsted ratings
- Well presented but recommend standard survey of services and roof lights
This extended three-bedroom semi-detached bungalow sits on Crossby Close in sought-after Alkrington, offering more than 1,000 sq ft of single-level living. The layout centres on an open-plan lounge/dining area with full-width bi-fold doors to a contemporary rear garden, plus a modern fitted kitchen and a useful utility room. The master bedroom includes an en-suite and there are Juliet balconies that add light and character.
Practical benefits include a large driveway with off-street parking, decent plot size, freehold tenure, fast broadband and excellent mobile signal — useful for commuters. The property is EPC rated C and positioned within easy reach of the M60/M62 and roughly seven miles from Manchester city centre.
The home is presented to a high standard throughout, making it suitable for buyers seeking a move-in ready bungalow with modern touches yet some traditional features. Its single-storey plan and modest maintenance garden also appeal to those looking to downsize without sacrificing space.
Points to note: council tax band D applies and, while several nearby secondary schools are rated Good, two local primary schools have lower Ofsted outcomes. Buyers should also confirm specific inspection items (services, roof lights, windows) during survey and viewing.
2 bedroom detached bungalow for sale in Evesham Road, Alkrington, Manchester, M24 — £249,995 • 2 bed • 1 bath • 563 ft²
3 bedroom semi-detached house for sale in Stanway Close, Alkrington, MIddleton, Manchester, M24 — £270,000 • 3 bed • 1 bath • 798 ft²
3 bedroom detached bungalow for sale in Elleray Road, Middleton, Manchester, M24 — £515,000 • 3 bed • 1 bath • 1200 ft²
1 bedroom bungalow for sale in Mount Road, Alkrington, Middleton, Manchester, M24 — £240,000 • 1 bed • 1 bath • 587 ft²
3 bedroom semi-detached house for sale in Elleray Road, Alkrington, Middleton, Manchester, M24 — £340,000 • 3 bed • 1 bath • 2386 ft²
3 bedroom semi-detached house for sale in Alresford Road, Alkrington, Middleton, Manchester, M24 — £335,000 • 3 bed • 1 bath • 952 ft²






























































































































