**Standout Features:**
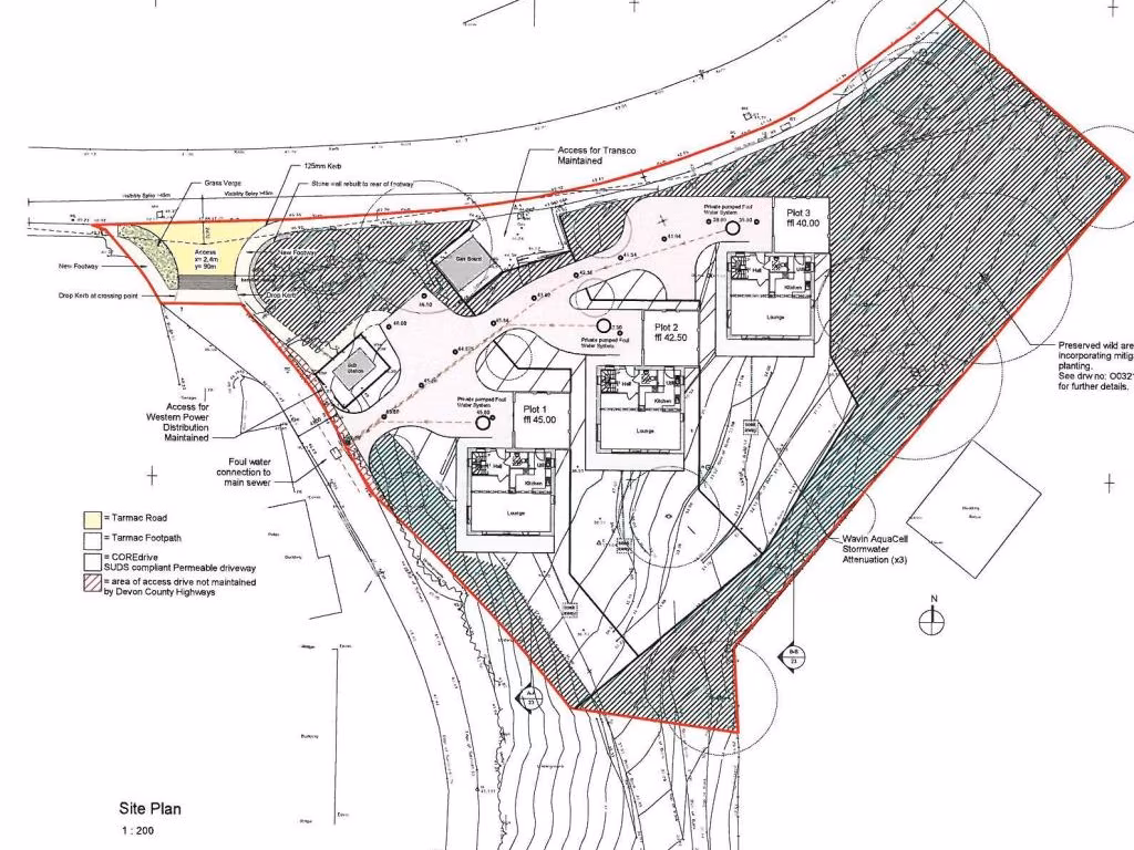
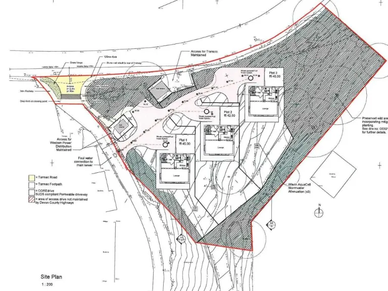
- Large building plot of 0.57 acres (0.23 hectares) on the outskirts of town
- Previously approved plans for 3 detached 4-bedroom homes (186m²/2000ft²)
- South-facing views over Chambercombe Valley and nearby countryside
- Double garages and ample parking spaces
- Approval subject to final 106 Agreement with existing utilities nearby
**Potential Downsides:**
- Planning permission has lapsed and will require resubmission
- Overage clause: £25,000 per completed house due to the original landowner
- Access improvements needed from Foxbeare Road
This expansive building plot offers an exceptional opportunity for developers or investors looking to create high-quality family homes. Nestled just outside town, the property boasts idyllic south-facing vistas overlooking Chambercombe Valley, ensuring each residence will enjoy natural light and stunning scenery. With plans for three spacious 4-bedroom homes, each featuring a modern design and luxurious amenities, there is significant potential to develop comfortable living spaces.
However, interested parties should note that the previous planning approval has lapsed; thus, resubmission will be necessary, alongside a required contribution towards public open space. The plot is privately situated, yet just a few hundred meters from the serene Hele Bay Beach, making it perfect for families or potential renters who enjoy coastal living. The property is chain-free and comes with local amenities accessible within a short drive, alongside good schools in proximity. Seize this opportunity to invest in a promising development poised in a peaceful area with ample growth potential—opportunities like this are rare!
Plot for sale in Cairn Road, Ilfracombe, Devon, EX34 — £125,000 • 1 bed • 1 bath • 2228 ft²
Land for sale in West Hill, West Down, EX34 — £395,000 • 1 bed • 1 bath • 1543 ft²
Plot for sale in Land Adjacent To Beechwood House, West Down, Ilfracombe, Devon, EX34 — £100,000 • 1 bed • 1 bath
Land for sale in Chambercombe Park Road, Ilfracombe, EX34 — £175,000 • 1 bed • 1 bath • 7405 ft²
Land for sale in Saunton Road, Braunton, EX33 — £275,000 • 3 bed • 1 bath • 1561 ft²
Detached house for sale in Chambercombe Park Road, Ilfracombe, EX34 — £175,000 • 1 bed • 1 bath






















