**Standout Features:**
- Two spacious bedrooms and two bathrooms
- Private balcony with stunning views of Wembley Stadium
- Modern, open-plan design with ample natural light
- Central location with access to local amenities and excellent transport links
- Constructed in 2023, offering contemporary living in a vibrant area
**Potential Concerns:**
- Above-average crime rate for the area
- Average service charge of £4,200 per year
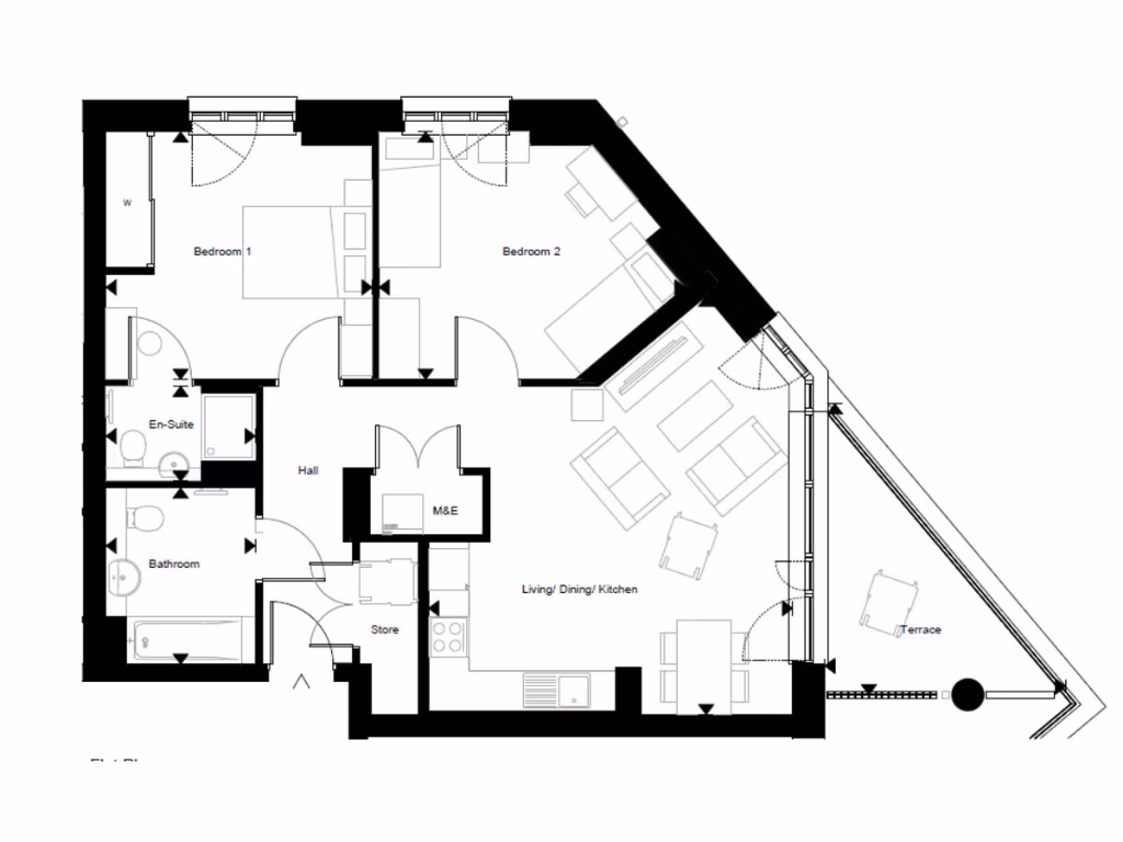
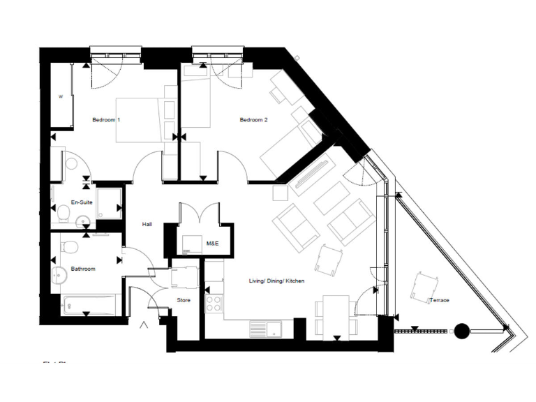
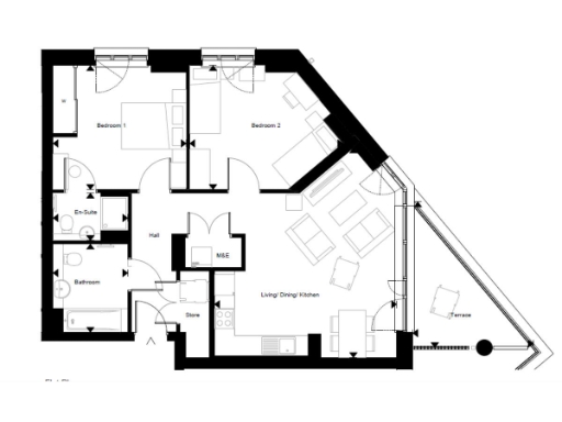
Discover urban living at its finest in this stylish two-bedroom, two-bathroom apartment situated in the heart of Wembley Park. Offering an impressive 668 square feet of contemporary space, this leasehold property boasts a private balcony with breathtaking views of the iconic Wembley Stadium—a rare gem that enhances daily living and entertaining. The open-plan layout and modern amenities make it an ideal choice for first-time buyers, young professionals, or investors looking to capitalize on a growing community amidst ongoing regeneration in the area.
Enjoy immediate access to a wealth of local shops, restaurants, and excellent transport links, all while being part of a multicultural neighborhood filled with vibrant energy. Although the crime rate is above average, the apartment's modern features, solid construction, and growing rental demand promise a lifestyle investment worth considering. With potential for customization and future renovations, this property not only serves as a cozy home but also as an opportunity for long-term value. Don’t miss your chance to own this extraordinary apartment—schedule your viewing today!
2 bedroom apartment for sale in Wembley, HA9 — £535,000 • 2 bed • 2 bath • 645 ft²
2 bedroom apartment for sale in 341 High Road, Wembley, HA9 — £465,000 • 2 bed • 2 bath
2 bedroom apartment for sale in Quadrant Court, Empire Way, Wembley, HA9 — £400,000 • 2 bed • 1 bath • 722 ft²
2 bedroom flat for sale in Elvin Gardens, Wembley Park, Wembley, HA9 — £550,000 • 2 bed • 2 bath • 787 ft²
2 bedroom apartment for sale in Wembley Park, HA9 — £500,000 • 2 bed • 2 bath
2 bedroom apartment for sale in Olympic Way, Wembley, HA9 — £580,000 • 2 bed • 2 bath • 872 ft²






































