Bright one-bedroom with strong transport links and fast broadband.
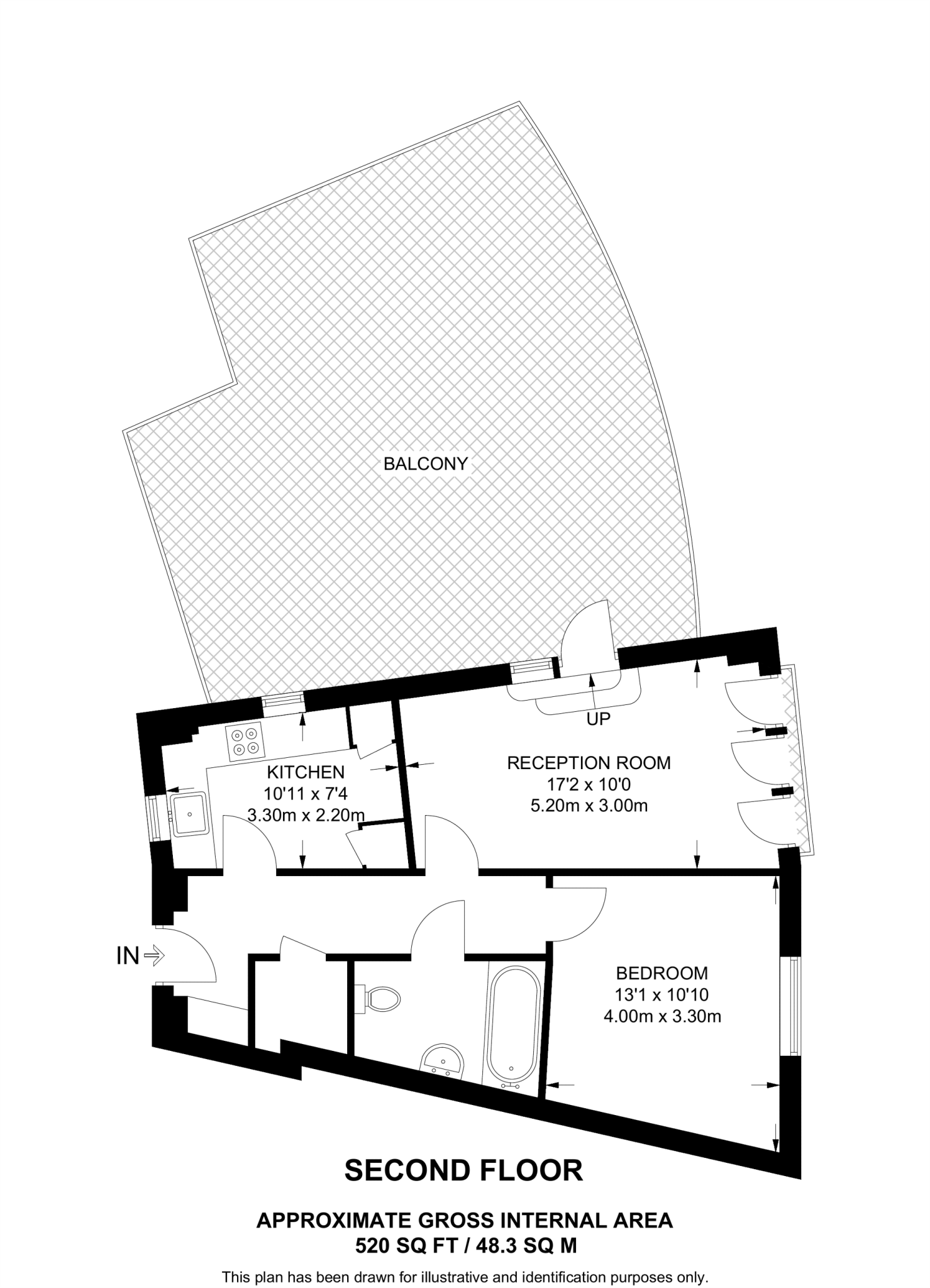
Top-floor flat with generous private roof terrace
Bright top-floor apartment in Banstead Court offering a generous roof terrace and dual-aspect living room. The separate kitchen and double bedroom make it a practical one-bed layout with clear indoor-outdoor appeal for alfresco relaxing or entertaining.
Positioned close to local shops, a large supermarket and the A40, the flat suits a commuter or a first-time buyer seeking convenience. Fast broadband and excellent mobile signal support home working. Several well-rated primary and secondary schools are within easy reach, including Ark Conway Primary Academy (Outstanding).
Buyers should note this is a leasehold property with an annual service charge of about £3,000 and ground rent around £150. The wider area records higher deprivation levels and average crime rates, which may affect long-term resale expectations. The apartment is average-sized (circa 520 sq ft) and in a modern purpose-built block, so major structural work is not indicated but any buyer should confirm lease length and service arrangements.
Studio flat for sale in Hamilton Road, Ealing Broadway, Ealing, W5 — £400,000 • 1 bed • 1 bath • 521 ft²
2 bedroom flat for sale in Lakeside Drive, Park Royal, London, NW10 — £650,000 • 2 bed • 2 bath • 968 ft²
1 bedroom flat for sale in Ravenswood Court, Acton, W3 — £400,000 • 1 bed • 1 bath • 657 ft²
2 bedroom flat for sale in Avonmore Gardens, West Kensington, London, W14 — £750,000 • 2 bed • 1 bath • 745 ft²
1 bedroom flat for sale in Shinfield Street, London, W12 — £385,000 • 1 bed • 1 bath • 423 ft²
1 bedroom flat for sale in Bloemfontein Road, London W12 — £500,000 • 1 bed • 2 bath • 625 ft²






































































