New kitchen, long lease and private south-facing garden — ideal first buy or buy-to-let..
Long lease (~974 years) and nominal £1 ground rent
No onward chain — ready for a quick purchase
Newly fitted kitchen and newly installed gas boiler
Private south-facing paved rear garden, small but sunny
UPVC double glazing and gas central heating throughout
Shared maintenance 50/50 with first-floor flat when required
Victorian stone exterior — some weathering, likely external repairs
Area classed as very deprived; consider rental demand and growth prospects
This self-contained ground-floor Victorian flat is a practical step onto the property ladder or a straightforward buy-to-let. The long lease (circa 974 years) and nominal £1 ground rent remove common leasehold worries, while the absence of an onward chain means a swift sale is possible.
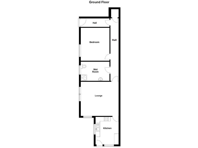
The interior has been refreshed with a newly installed kitchen and boiler, plus UPVC double glazing and gas central heating. The layout is efficient: L-shaped hall, double bedroom, generous wet room, and a bright lounge with dual aspect windows. A private south-facing rear garden (paved) adds valuable outdoor space for summer dining.
There are some material points to note. The building is an older Victorian stone property with external weathering and assumed lack of wall insulation; some external decoration or repairs may be required. Maintenance of the building is shared 50/50 with the first-floor flat. The local area scores as very deprived, which may affect long-term capital growth but supports rental demand.
Overall, this compact but roomy 1-bed flat (approximately 660 sq ft) suits first-time buyers, retirees seeking single-floor living, or landlords after a low-entry investment with immediate rental potential. Viewing is recommended to appreciate the light rooms and south-facing garden.
1 bedroom flat for sale in Swiss Road, Weston-Super-Mare - No chain, BS23 — £150,000 • 1 bed • 1 bath • 532 ft²
1 bedroom flat for sale in Walliscote Road, Weston-Super-Mare - NO CHAIN!, BS23 — £73,000 • 1 bed • 1 bath • 396 ft²
1 bedroom ground floor flat for sale in Pitman Road, Weston-super-Mare, BS23 — £180,000 • 1 bed • 1 bath • 484 ft²
2 bedroom flat for sale in Severn Road, Weston-Super-Mare, BS23 — £180,000 • 2 bed • 1 bath • 700 ft²
2 bedroom flat for sale in Swiss Road, Weston-Super-Mare, BS23 — £155,000 • 2 bed • 1 bath • 657 ft²
2 bedroom flat for sale in Pitman Road, Weston-super-Mare, BS23 — £170,000 • 2 bed • 1 bath • 486 ft²


















































