Bright two-bedroom close to Streatham Common and fast transport links.
Share of freehold tenure included
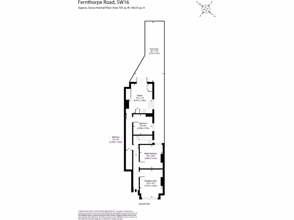
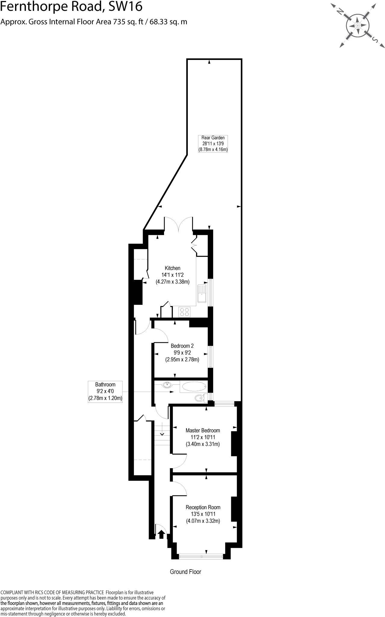
This bright two-bedroom ground-floor flat combines period character and contemporary fittings in a compact, efficient layout. A separate reception room features original wooden floorboards, a feature fireplace and double-glazed windows with half shutters, while the eat-in kitchen opens directly onto a private patio garden — a useful outdoor room for summer dining or container gardening.
Presented to a modern standard throughout, the property benefits from integrated appliances, a fully tiled bathroom and good natural light to both front and rear aspects. At 735 sq ft the accommodation suits first-time buyers or couples seeking a manageable home with scope to personalise; it also offers straightforward buy-to-let potential in an established SW16 location.
Practical points to note: the building dates from c.1900–1929 with solid brick walls (likely no cavity insulation) and double glazing of unknown install date. The tenure is a share of freehold and the garden is a small-to-average paved courtyard, so outdoor space is limited. Council Tax Band C applies.
Location is a genuine strength: tree-lined Fernthorpe Road sits within easy walking distance of Streatham Common station (approx. 0.5 miles) and local shops, cafés and buses. Good schools nearby and fast broadband/mobil e coverage add to everyday convenience for commuting and family life.
2 bedroom flat for sale in Mitcham Lane, London, SW16 — £450,000 • 2 bed • 1 bath • 604 ft²
2 bedroom apartment for sale in Leigham Court Road, London, SW16 — £475,000 • 2 bed • 1 bath • 754 ft²
2 bedroom flat for sale in Knollys Road, Streatham, SW16 — £425,000 • 2 bed • 1 bath • 708 ft²
2 bedroom apartment for sale in Sunnyhill Road, London, SW16 — £500,000 • 2 bed • 1 bath • 646 ft²
2 bedroom flat for sale in Ellison Road, Streatham, London, SW16 — £550,000 • 2 bed • 1 bath • 791 ft²
2 bedroom flat for sale in Natal Road, Streatham, London, SW16 — £450,000 • 2 bed • 1 bath • 633 ft²


















































