Generous garden, garage and parking near Jubilee Line stations.
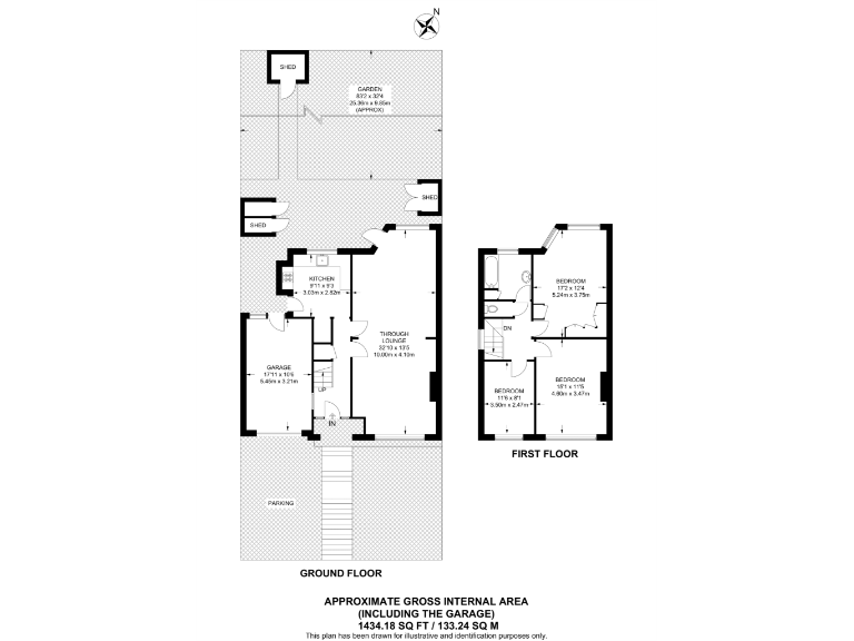
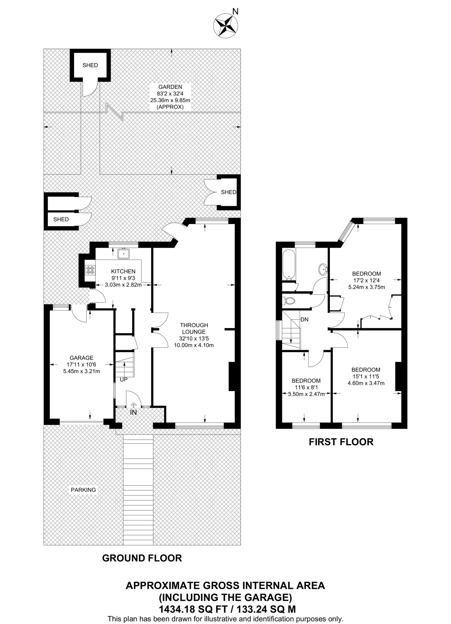
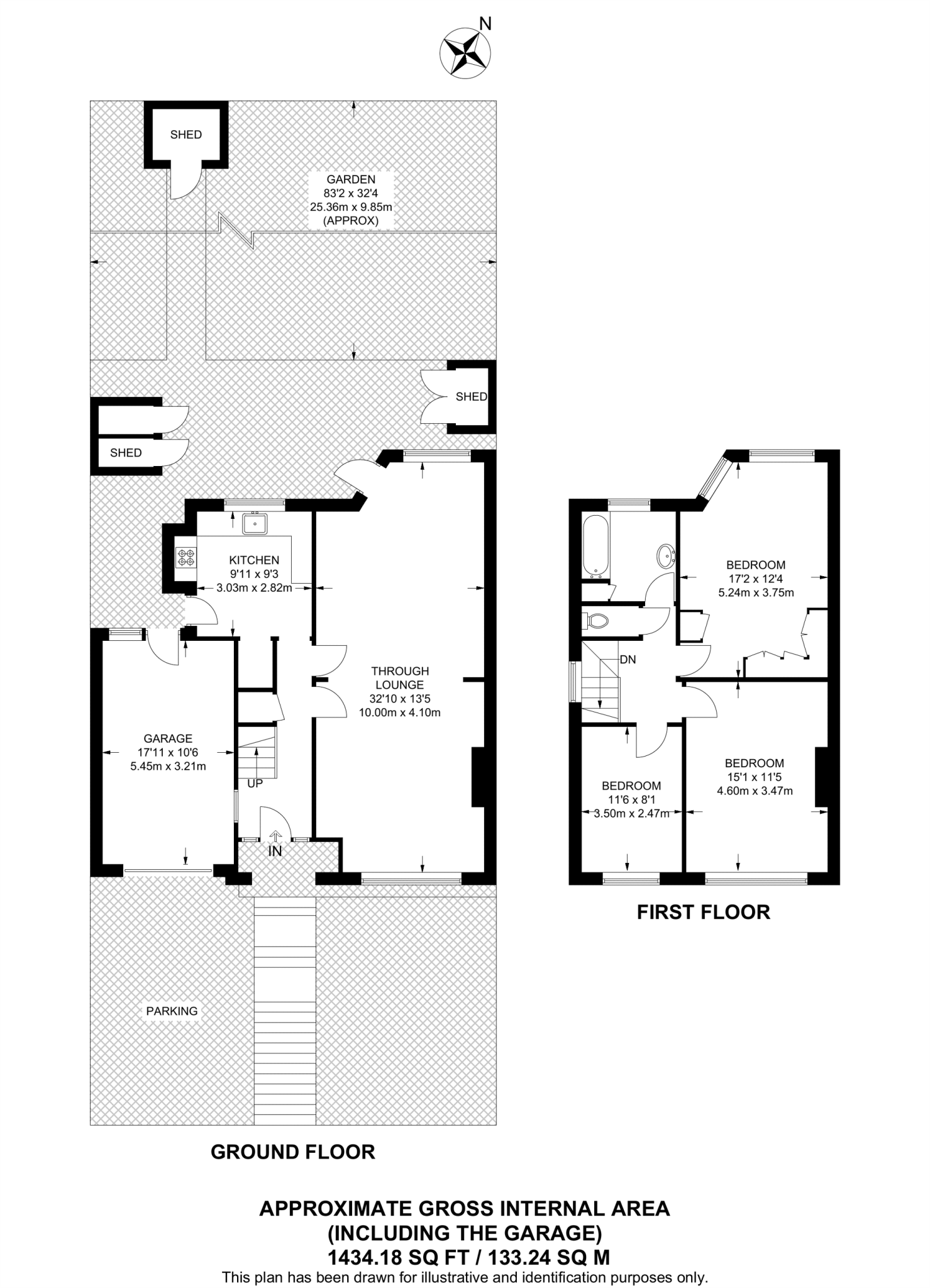
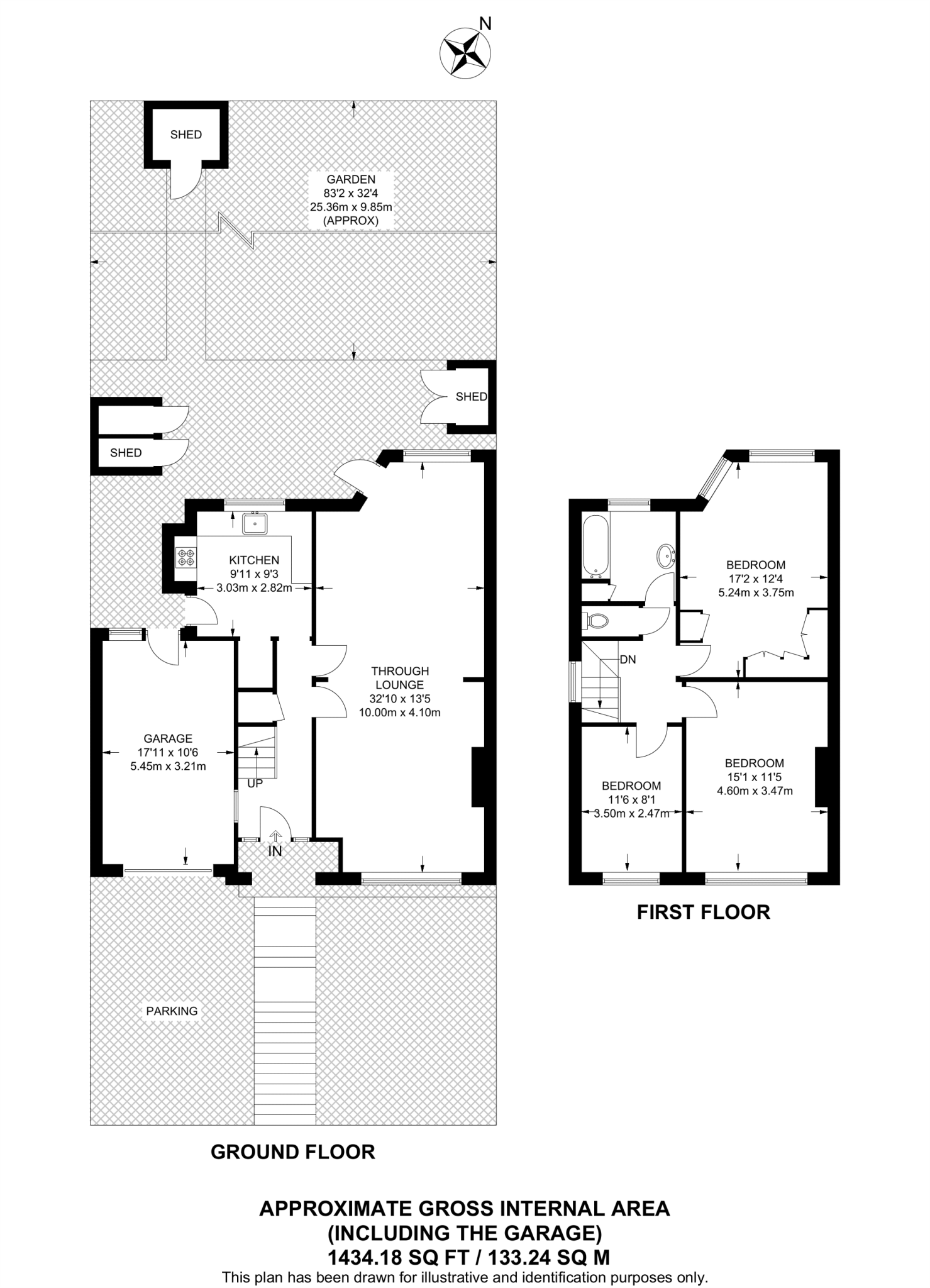
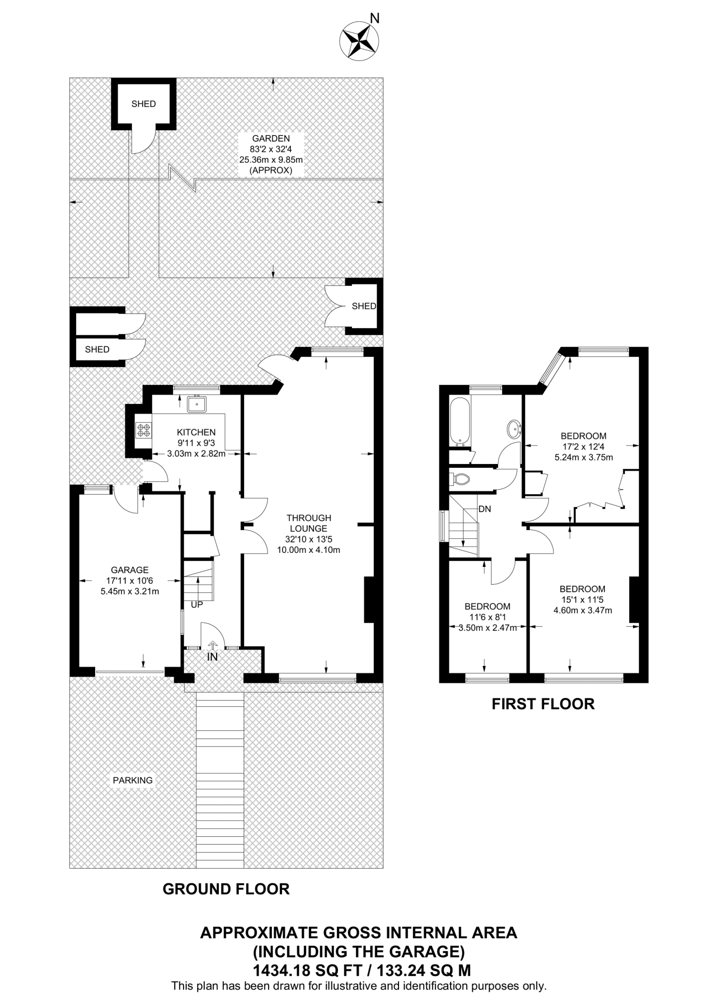
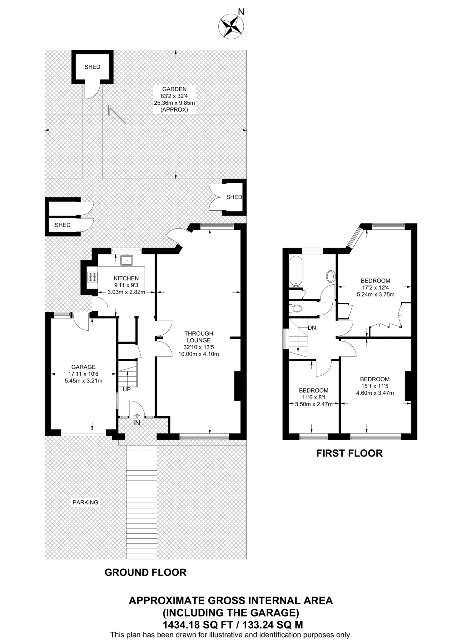
Large 1,434 sq ft family layout across multiple storeys
This substantial three-bedroom semi-detached house offers generous family accommodation across multiple floors, arranged around a bay-fronted double reception and a modern kitchen with dining space. At about 1,434 sq ft it feels larger than many nearby homes and opens onto an 83ft landscaped garden — ideal for children and entertaining. Off-street parking and an integrated garage add valuable practical space in this busy part of NW10.
The house sits close to Gladstone Park and is within easy reach of Neasden and Dollis Hill Jubilee Line stations, plus the A406 for road links. Local primary and secondary schools have Good Ofsted ratings, making the location convenient for families. Fast broadband and excellent mobile signal are ready for home working and streaming.
There are some important, factual drawbacks to note. The property was constructed in the 1930s–40s with solid brick walls and is assumed to have no cavity wall insulation; double glazing was fitted before 2002. Internal decor is dated in places and will need modernisation to match the updated kitchen. There is a single bathroom for three bedrooms, which may require alteration for some buyers.
Finally, the local area records higher crime and relative deprivation indicators; buyers should factor this into their decision. Overall, the house offers strong space and outdoor potential for a family willing to update parts of the property.
3 bedroom semi-detached house for sale in Clifford Way, London, NW10 — £699,950 • 3 bed • 1 bath • 1215 ft²
3 bedroom terraced house for sale in Clifford Way, London, NW10 — £600,000 • 3 bed • 1 bath • 1152 ft²
4 bedroom semi-detached house for sale in Kenwyn Drive, Gladstone Park, London, NW2 — £600,000 • 4 bed • 2 bath • 1536 ft²
5 bedroom house for sale in Fleetwood Road, Willesden Green, London, NW10 — £950,000 • 5 bed • 2 bath • 1735 ft²
5 bedroom semi-detached house for sale in Dollis Hill Avenue, Gladstone Park, London, NW2 — £875,000 • 5 bed • 2 bath • 1730 ft²
5 bedroom semi-detached house for sale in Fleetwood Road, London NW10 — £950,000 • 5 bed • 2 bath • 1735 ft²






















































































































































































































































