Large freehold redevelopment opportunity with period character minutes from Metrolink.
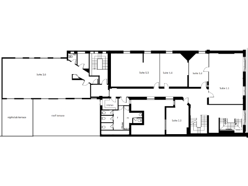
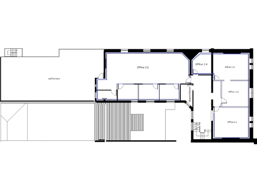
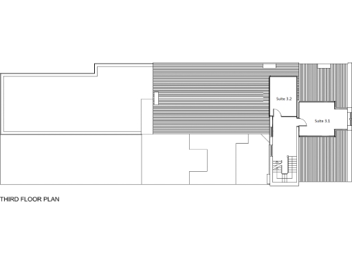
Freehold landmark building, approx. 15,200 sq ft over four floors
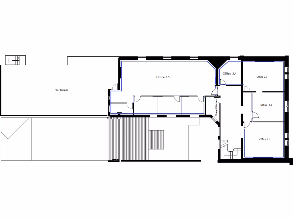
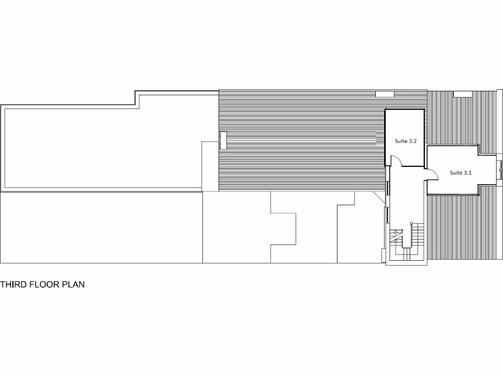
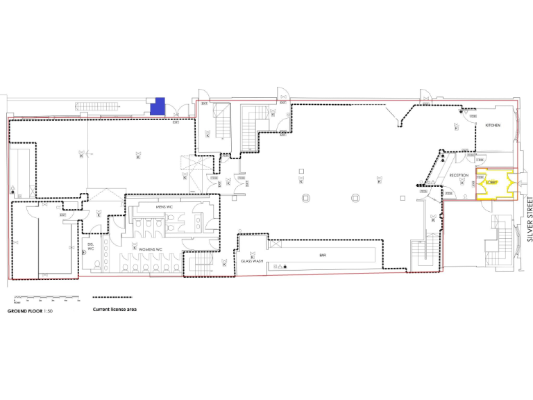
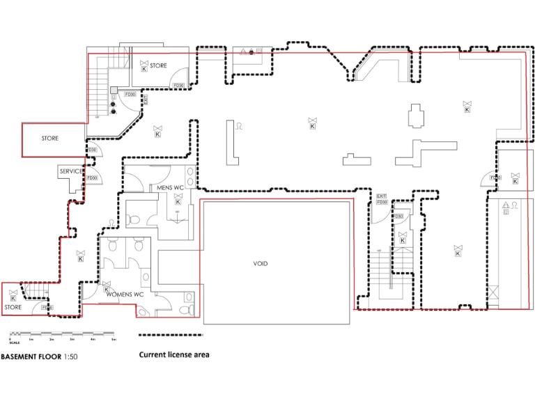
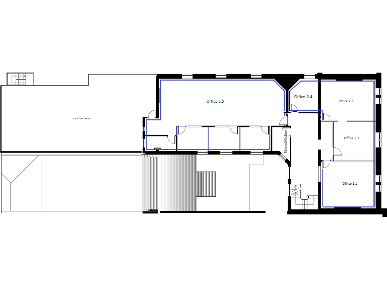
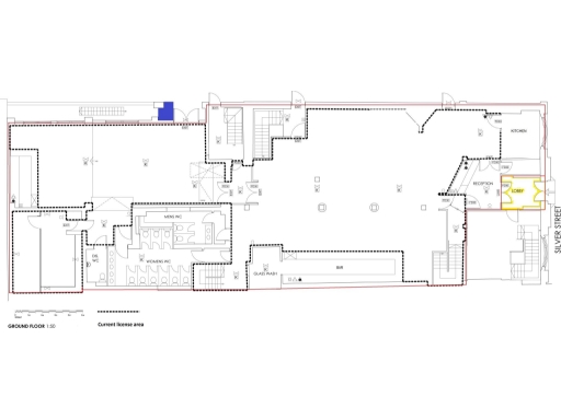
A landmark four‑storey sandstone building in the heart of Bury town centre, The Old Royal Hotel offers about 15,200 sq ft of versatile space across ground, basement and three upper floors. The property is being sold freehold with vacant possession, presenting an immediate opportunity for an investor or developer to reposition the building for commercial, mixed‑use or residential conversion (subject to planning).
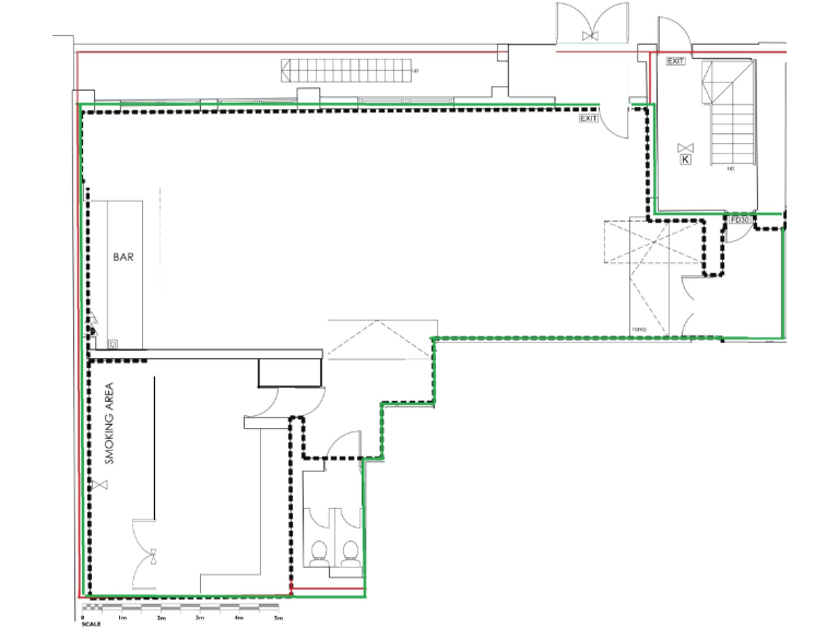
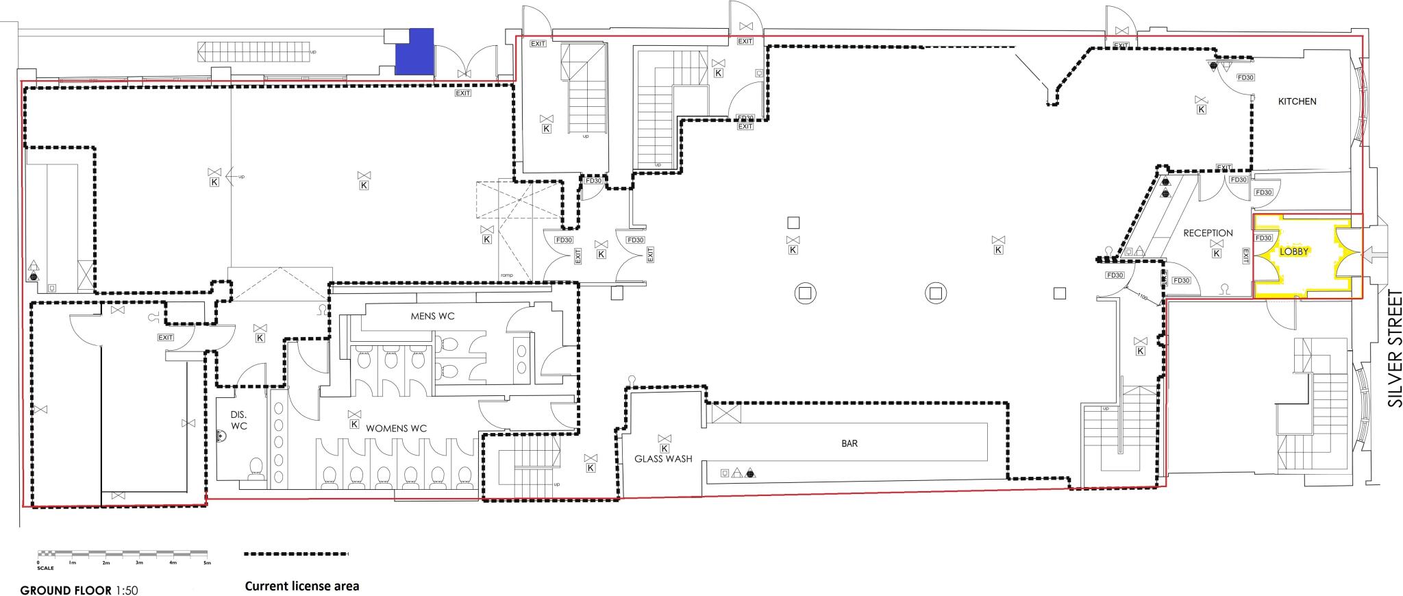
The building's period façade, high ceilings and large sash windows give strong character and curb appeal. Ground and basement previously operated as nightlife and bar venues, while the upper floors have been used as offices and are presently in shell condition — straightforward for comprehensive refurbishment but requiring significant works, services upgrades and licensing reviews for leisure uses.
Practical considerations are important: there is no private outdoor amenity, town‑centre footfall and parking are limited, and the surrounding area is classified as very deprived which may affect rental levels and end‑user profiles. Conversions will need the usual consents and potentially soundproofing or remediations associated with nightclub use.
For the right buyer this is a high‑potential, town‑centre development plot — close to Metrolink, bus station and the M60 — suited to those wanting a substantial project with strong long‑term upside from refurbishment, rental income or change‑of‑use, provided budgeted works and planning are factored in.
High street retail property for sale in 4-6 Silver Street, Bury, BL9 0EX, BL9 — £350,000 • 1 bed • 1 bath • 4000 ft²
Bar / nightclub for sale in 3 Silver Street, Bury, Greater Manchester, BL9 — £210,000 • 1 bed • 1 bath • 2000 ft²
Commercial property for sale in 305 & 305A Bolton Road, Bury, BL8 — £230,000 • 1 bed • 1 bath • 1978 ft²
Office for sale in Oddfellows House, 94 Manchester Road, Bury, BL9 0TH, BL9 — £600,000 • 1 bed • 1 bath • 4000 ft²
Residential development for sale in 5 Greaves Street, Oldham, Greater Manchester, OL1 — £375,000 • 1 bed • 1 bath • 3875 ft²
Commercial development for sale in The Courthouse , Tenterden Street, Bury, Lancashire, BL9 — £1,200,000 • 1 bed • 1 bath • 17227 ft²






























































































































