Versatile family home with private garden and large driveway.
Large kitchen with central island and generous dining space
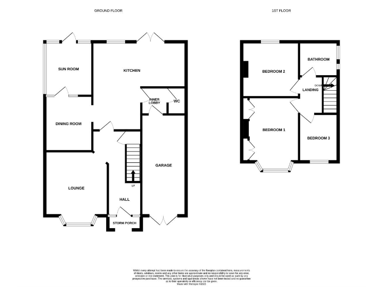
This three-bedroom semi-detached home blends period character with practical family space. The property offers a large kitchen with central island, separate living and dining rooms, and a converted loft that can function as a fourth bedroom, office or studio. A private, not-overlooked garden and a wide driveway for 3–4 cars plus an interconnected garage add everyday convenience and secure parking.
Practical comforts include mains gas central heating, double glazing (installed before 2002) and fast broadband with excellent mobile signal — useful for home working. Flood risk is very low and the plot size is generous for the area. Nearby schools are rated Good, and local amenities are within easy reach.
Notable considerations: the house dates from c.1900–1929 with solid brick walls likely without cavity insulation, and some rooms (living room) need modernisation. Double glazing is older and the property may benefit from insulation improvements and updating to maximise energy efficiency. The location is in an area of higher deprivation and crime is average, which some buyers may weigh against the value on offer.
Overall this is a family-oriented period home with scope to improve energy performance and interior finish — ideal for buyers seeking space, parking and future-value potential through targeted refurbishment.
3 bedroom semi-detached house for sale in Lawn Avenue, Great Yarmouth, NR30 — £300,000 • 3 bed • 1 bath • 1394 ft²
3 bedroom semi-detached house for sale in Lawn Avenue, Great Yarmouth, NR30 — £295,000 • 3 bed • 1 bath • 1271 ft²
3 bedroom semi-detached house for sale in Lawn Avenue, Great Yarmouth, NR30 — £285,000 • 3 bed • 1 bath • 1152 ft²
3 bedroom end of terrace house for sale in Fisher Avenue, Great Yarmouth, NR30 — £300,000 • 3 bed • 1 bath
3 bedroom semi-detached house for sale in Higher Drive, Lowestoft, NR32 — £270,000 • 3 bed • 2 bath • 915 ft²
3 bedroom semi-detached house for sale in Framlingham Close, Great Yarmouth, Norfolk, NR31 — £220,000 • 3 bed • 1 bath • 996 ft²










































































