Large family link-detached home near top grammar schools and Elizabeth line..
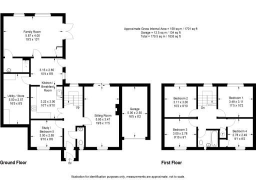
Five bedrooms and two bathrooms — family-sized accommodation
Four reception rooms plus study/ground-floor bedroom for flexible use
Large kitchen/breakfast room and generous utility/store space
Off-street parking for several cars, plus single garage with power
Enclosed, low-maintenance garden with storage unit and exterior lighting
Built 1967–1975; will benefit from updating and modernisation work
Cavity walls assumed uninsulated — potential energy-efficiency upgrade needed
Small plot size; limited outdoor space compared to house footprint
This substantial five-bedroom link-detached house in Slough offers generous family accommodation across multiple reception rooms and a large kitchen/breakfast area. The property benefits from off-street parking for several cars, a single garage, and a private enclosed garden — practical for children and weekend entertaining. Sold with no onward chain and close to excellent grammar and primary schools, it suits growing families seeking space and convenience.
Internally the home provides flexible living: two large reception rooms, a study/ground-floor bedroom, utility/store room and a family-sized kitchen. Double glazing and mains gas central heating are in place, and rooms are bright with good natural light. There are five bedrooms upstairs and two family bathrooms, accommodating larger households or home-office needs.
Notable considerations: the house dates from the late 1960s/early 1970s and some elements will benefit from updating to modern standards. The cavity walls are recorded as without insulation (assumed) and there are only two bathrooms for five bedrooms, which may prompt future owners to reconfigure or extend subject to consent. The plot is described as small, so garden space is limited compared with the overall house size.
Location is a key strength — within easy reach of Slough town centre, mainline rail (including Elizabeth line connections), motorway links and a range of shops and local amenities. Broadband and mobile signal are strong. Overall this is a practical, spacious family home with clear scope to personalise and modernise.
5 bedroom semi-detached house for sale in Oatlands Drive, Slough, Berkshire, SL1 — £640,000 • 5 bed • 3 bath • 2681 ft²
5 bedroom semi-detached house for sale in Benjamin Lane, Slough, SL3 — £540,000 • 5 bed • 2 bath • 1635 ft²
4 bedroom detached house for sale in Stoke Road, Slough SL2 — £750,000 • 4 bed • 4 bath • 1414 ft²
4 bedroom end of terrace house for sale in Grasmere Avenue, Slough, Berkshire, SL2 — £550,000 • 4 bed • 2 bath • 1092 ft²
4 bedroom detached house for sale in The Fairway, Burnham, SL1 — £900,000 • 4 bed • 2 bath • 1584 ft²
4 bedroom link detached house for sale in Palmerston Avenue, Slough, SL3 — £795,000 • 4 bed • 3 bath • 1500 ft²






























































