Spacious four-bedroom family home above town with private garden and good transport links.
Chain free Victorian terrace with period stone facade
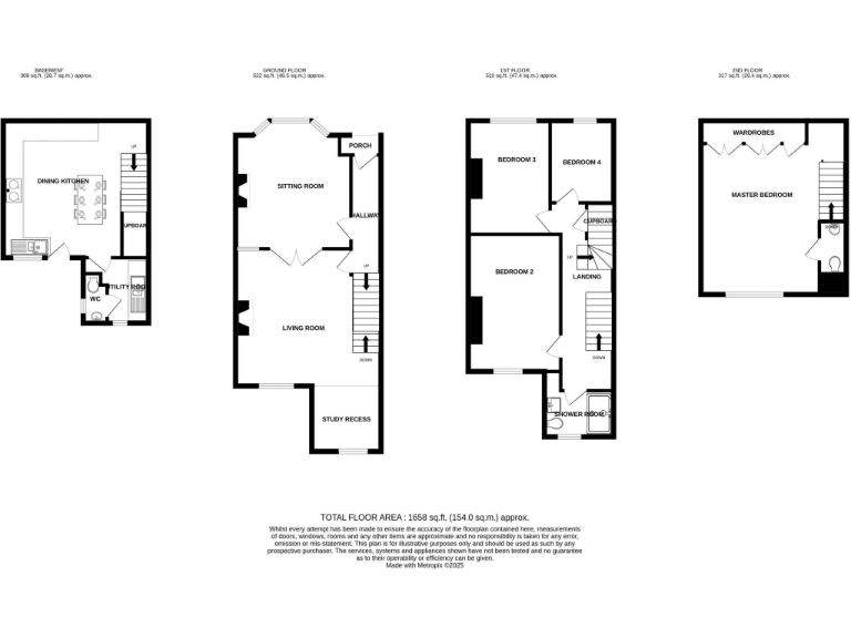
Set above Hebden Bridge town centre, this stone Victorian terrace offers generous family accommodation across four floors. The large dining kitchen with Aga and separate utility sits on the lower ground floor with direct garden access, while two comfortable reception rooms occupy the upper ground level. A sizeable master bedroom occupies the second floor with dormer windows and fitted wardrobes.
Practical features include double glazing, gas central heating and toilets on three different levels — a modern shower room on the first floor and additional WCs. At about 1,658 sq ft the house balances period character with useful modern updates and provides excellent views over the town.
The property is chain free and within roughly 0.5 miles of the railway station and local amenities, making daily commutes and school runs straightforward. The rear garden offers private outdoor space, although the plot is small compared with suburban homes and the multi-storey layout may be less suitable for anyone with mobility limitations.
Overall this is a well-presented period family home in a prime Hebden Bridge location, combining character features and practical living spaces. Buyers seeking level-ground gardens or larger plots should note the compact plot size and staired layout.
2 bedroom terraced house for sale in Edward Street, Hebden Bridge, HX7 — £250,000 • 2 bed • 1 bath • 1202 ft²
2 bedroom terraced house for sale in Hirst Grove, Hebden Bridge, HX7 — £200,000 • 2 bed • 1 bath • 918 ft²
5 bedroom end of terrace house for sale in Mitchell Street, Hebden Bridge, West Yorkshire, HX7 — £310,000 • 5 bed • 1 bath • 1562 ft²
4 bedroom terraced house for sale in Hangingroyd Lane, Hebden Bridge, West Yorkshire, HX7 — £375,000 • 4 bed • 1 bath • 1596 ft²
4 bedroom detached house for sale in Marlborough Road, Hebden Bridge, West Yorkshire, HX7 — £875,000 • 4 bed • 2 bath • 862 ft²
3 bedroom end of terrace house for sale in Railway View, Palace House Road, Hebden Bridge, HX7 — £225,000 • 3 bed • 1 bath • 894 ft²






















































































































