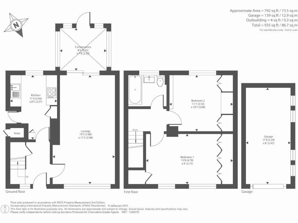
Two-bedroom semi-detached with garage and off-street parking
This two-bedroom semi-detached house in St Johns, Woking, offers practical family living with strong transport links and immediate occupancy — no onward chain. Set on a small plot, the property includes off-street parking and a garage, making it rare for the area and convenient for everyday life. The home sits within easy reach of Woking Station, town centre amenities and the Basingstoke Canal, appealing to commuters and families who value local green space.
Internally the layout is straightforward across two storeys with approximately 935 sq ft of accommodation. The kitchen dates from the 1980s and the house shows typical mid-20th-century construction; buyers should expect cosmetic updating throughout and may wish to improve energy performance (cavity walls assumed uninsulated). There is potential to enhance or extend subject to planning permission (STPP), offering scope to add value for owner-occupiers or investors.
Local schools include several rated Good and one Outstanding secondary, making the location practical for families. Amenities and public transport are within walking distance and broadband and mobile signals are strong. Note the area registers higher deprivation than some neighbouring wards and local crime is average — factors to weigh alongside the property’s commuter convenience and no-chain sale.



















































































