Bright open-plan home with exclusive leisure facilities and excellent transport links.
Freehold two-bedroom apartment in Clarendon complex
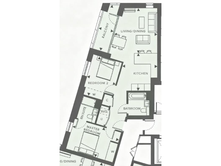
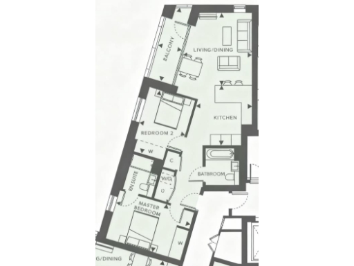
Dual-aspect open-plan living with small private balcony
Principal bedroom with built-in wardrobes and en-suite
Unlimited access to Park Club pool, gym, spa and studios
Four stations walkable; Zone 3 Piccadilly Line access
Heating via community scheme — potential variable service costs
No private garden; average-sized rooms for urban living
Located in area with above-average crime statistics
This modern two-bedroom apartment in Alington House offers practical city living with access to extensive onsite leisure facilities. The open-plan living area opens onto a small balcony, providing good natural light from dual-aspect windows. The principal bedroom benefits from fitted wardrobes and an en-suite; there is also useful built-in storage and a family bathroom.
Residents have unlimited access to the Park Club facilities, including pool, gym, spa, yoga studio and flexible office space — a strong lifestyle and rental USP. The building is freehold, positioned in Zone 3 with four stations within walking distance, making commutes straightforward and attractive to renters or first-time buyers.
Practical points to note: the property sits in an inner-city area with above-average crime statistics, and heating is supplied via a community scheme, which may affect running costs. The balcony is small and there’s no private garden; the internal footprint is average for an urban two-bedroom. Overall, this is a convenient, well-equipped flat suited to buyers seeking lifestyle amenities and transport links, or investors targeting long-term rental demand.
2 bedroom flat for sale in Alington House, Mary Neuner Road, London, N8 — £560,000 • 2 bed • 2 bath • 787 ft²
2 bedroom apartment for sale in Alington House, Mary Neuner Road, N8 — £480,000 • 2 bed • 2 bath • 775 ft²
2 bedroom apartment for sale in Alington House, Alexandra Gate, N8 — £550,000 • 2 bed • 2 bath • 763 ft²
2 bedroom apartment for sale in Alington House, Mary Neuner Road, N8 — £560,000 • 2 bed • 2 bath • 786 ft²
2 bedroom apartment for sale in Mary Neuner Rd London N8 — £535,000 • 2 bed • 2 bath • 790 ft²
1 bedroom apartment for sale in Alington House, Horsney, London, N8 — £475,000 • 1 bed • 1 bath • 585 ft²


































































































































