Chain-free three-bed with large garden and excellent transport links for commuters.
- Chain free three-bedroom semi-detached house
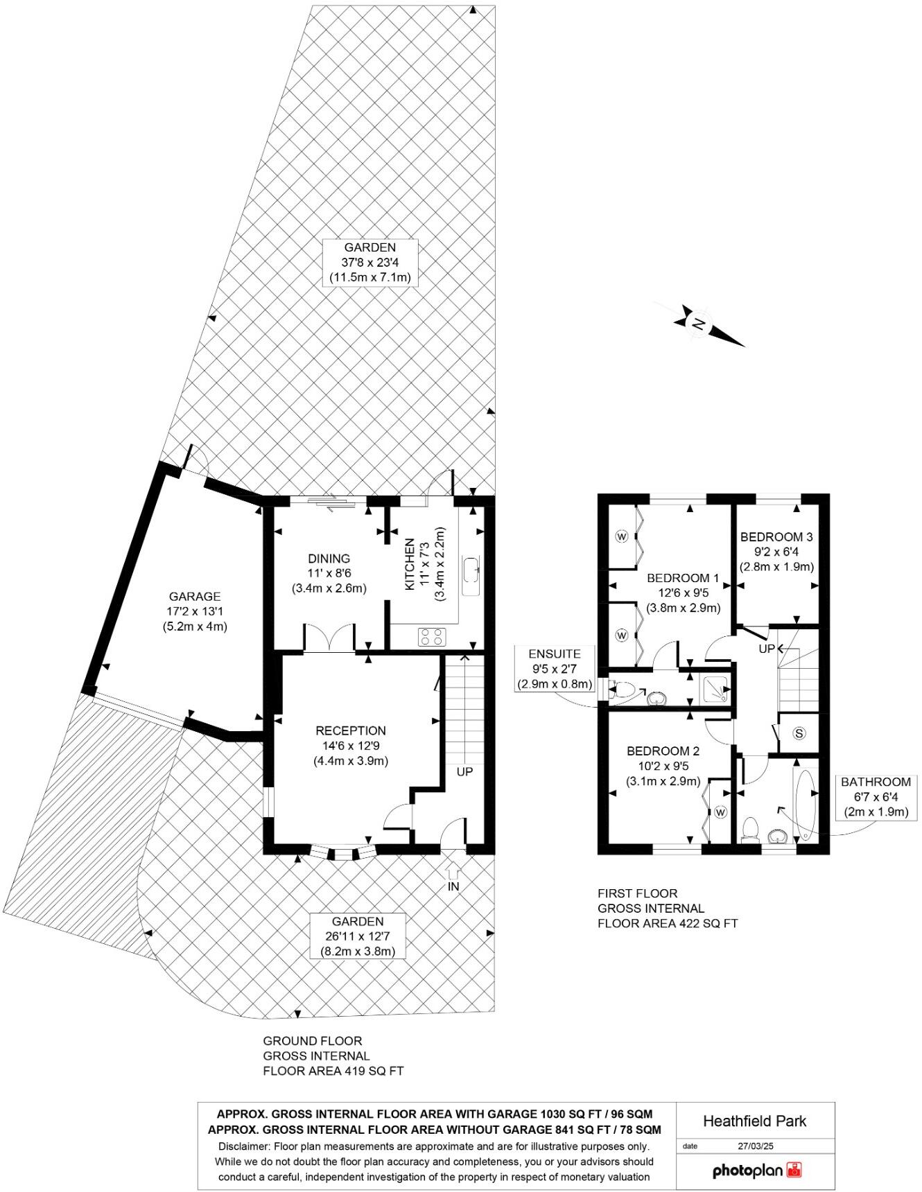
- Approx 37'8" x 23'4" private rear garden
- 8.2m driveway plus 17'2" x 13'1" garage
- Separate fitted kitchen and dining room
- Principal bedroom with en suite shower/WC
- EPC Rating C; double glazing and gas central heating
- Constructed early 1990s; may benefit from cosmetic updates
- Council tax band E; small plot size
Set on a quiet residential street in RM6, this three-bedroom semi offers practical family living with a generous private garden and wide driveway. The layout includes a separate fitted kitchen, dining room and a 14'6" x 12'9" reception room — convenient for everyday life and hosting. An en suite to the principal bedroom and a family bathroom add useful flexibility for a growing household.
Externally there’s a large approx 17'2" x 13'1" garage and an 8.2m driveway providing substantial off-street parking. The rear garden (approx 37'8" x 23'4") is a genuine asset for alfresco dining, play or landscaping. Gas central heating, double glazing and an EPC C rating mean the house is reasonably efficient for its age (1991–95 construction).
The property is offered chain free and sits close to bus routes with direct links to the A12 and Goodmayes (Elizabeth line) station, making commutes into the city straightforward. Local schools range from outstanding primary to good secondary options, which will appeal to families.
Buyers should note the home is an average-sized, practical family house that may benefit from cosmetic updating in places to match modern tastes. Council tax sits at band E, and the plot is compact — the house is ideal for buyers who prioritise outdoor space over extensive grounds.
3 bedroom terraced house for sale in Agnes Gardens, Dagenham, RM8 — £375,000 • 3 bed • 1 bath • 890 ft²
3 bedroom semi-detached house for sale in Farmway, Dagenham, RM8 — £450,000 • 3 bed • 1 bath • 910 ft²
3 bedroom semi-detached house for sale in Christie Gardens, Romford, RM6 — £524,995 • 3 bed • 1 bath • 1210 ft²
3 bedroom terraced house for sale in Fitzstephen Road, Dagenham, RM8 — £425,000 • 3 bed • 1 bath • 762 ft²
3 bedroom end of terrace house for sale in Winding Way, Dagenham, RM8 — £500,000 • 3 bed • 2 bath • 987 ft²
3 bedroom end of terrace house for sale in Goresbrook Road, Dagenham, RM9 — £425,000 • 3 bed • 2 bath • 839 ft²






































































































