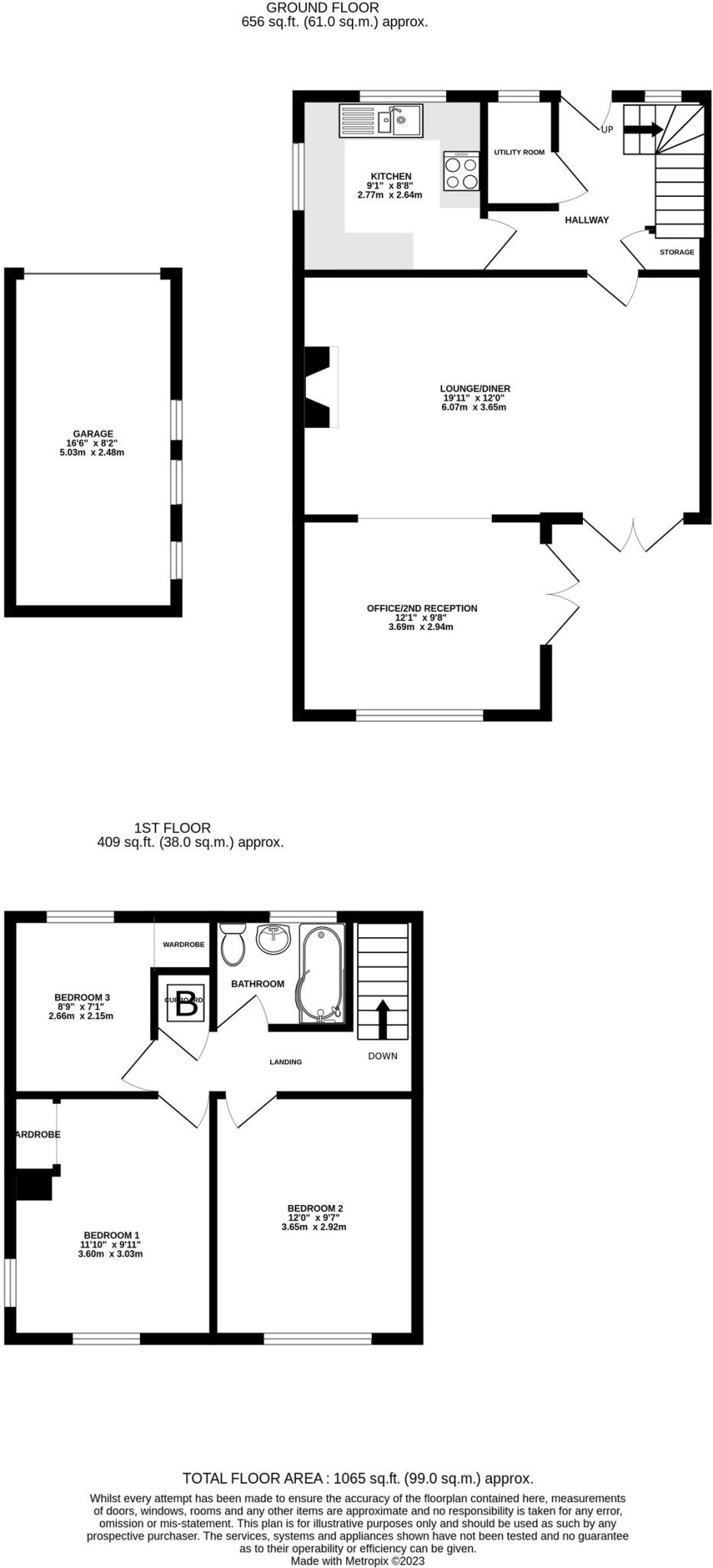
**Standout Features:**
- Three spacious bedrooms
- Extended semi-detached design
- Through lounge/diner connecting to a second reception/office
- Utility room for added convenience
- Detached garage plus parking for up to four cars
- West-facing garden with scenic far-reaching views, approx. 41'3 x 41'0
- Potential for future extensions, subject to approval
**Property Summary:**
Welcome to this charming three-bedroom extended semi-detached family home located in the desirable area of Chatham, Kent. This 1970s property features a bright through lounge/diner that seamlessly connects to a versatile second reception space, perfect for an office or additional living area. The well-maintained kitchen and utility room add functionality for modern living. With a detached garage and off-street parking for approximately four vehicles, practicality is at the forefront.
Enjoy serene views from your stunning west-facing garden—ideal for family gatherings or quiet evenings outdoors. This property also holds excellent potential for extension or renovation, allowing future homeowners to tailor the space to their needs, with council approval. While the neighborhood has its challenges, it offers a vibrant community spirit and is within reach of local amenities, schools, and transport links, making it a great option for families or investors seeking value.
This home strikes a balance between comfort and opportunity—don’t miss the chance to make it your own!
3 bedroom semi-detached house for sale in Bankside, Chatham, ME5 — £290,000 • 3 bed • 1 bath • 868 ft²
3 bedroom semi-detached house for sale in Longhill Avenue, Chatham, Kent, ME5 — £275,000 • 3 bed • 1 bath • 1237 ft²
3 bedroom semi-detached house for sale in Illustrious Close, Chatham, ME5 — £270,000 • 3 bed • 1 bath • 903 ft²
3 bedroom semi-detached house for sale in Quickthorn Crescent, Chatham, ME5 — £325,000 • 3 bed • 1 bath • 891 ft²
3 bedroom semi-detached house for sale in Ingle Road, Chatham, ME4 — £325,000 • 3 bed • 1 bath • 923 ft²
5 bedroom semi-detached house for sale in Maidstone Road, Chatham, ME4 — £850,000 • 5 bed • 3 bath • 3164 ft²










































