Chain-free two-bed flat with garage and riverside garden near Summertown.
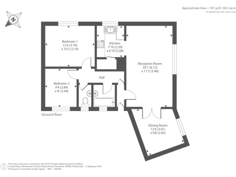
Two bedrooms, separate living and dining rooms
Set in a quiet cul-de-sac just 600m from Summertown, this two-bedroom flat offers a well-proportioned layout and long lease security — ideal for professionals, couples or small families seeking North Oxford convenience. The accommodation includes a separate living room and dining room, a compact kitchen, bathroom plus separate WC, and extends to approximately 747 sq ft.
Practical benefits include a garage, double glazing, access to a communal riverside garden and on-street permit parking. The property is sold chain free with a share of freehold and a very long lease (approximately 943 years remaining), reducing typical flat ownership uncertainties and making mortgage applications straightforward.
The building dates from the late 1960s/early 1970s and is typical post-war construction. Walls are cavity without assumed additional insulation; purchasers should note potential energy-efficiency improvements may be beneficial. There is one bathroom serving two bedrooms, which may be a consideration for larger households.
Location is a key asset: highly qualified local population, very affluent area, excellent broadband and mobile signal, plus several well-regarded state and independent schools within easy reach. No flooding risk is recorded and council tax is moderate, making the home practical as a primary residence or a long-term investment.
2 bedroom apartment for sale in Water Eaton Road, Oxford, OX2 — £340,000 • 2 bed • 1 bath • 581 ft²
2 bedroom flat for sale in Summertown, North Oxford, OX2 — £325,000 • 2 bed • 1 bath • 753 ft²
2 bedroom flat for sale in Davenant Road, Oxford, OX2 — £475,000 • 2 bed • 1 bath • 672 ft²
2 bedroom apartment for sale in Banbury Road, Oxford, Oxfordshire, OX2 — £498,000 • 2 bed • 1 bath • 760 ft²
2 bedroom terraced house for sale in Oakthorpe Road, Oxford, OX2 — £575,000 • 2 bed • 1 bath • 906 ft²
2 bedroom apartment for sale in Hernes Road, The Firs Hernes Road, OX2 — £400,000 • 2 bed • 1 bath • 570 ft²


















































































