**Standout Features:**
- Charming three-bedroom semi-detached Victorian villa
- Stone-built with many original features
- Spacious enclosed country gardens with mature trees
- Gas central heating and fully double glazed
- Ample off-road parking
- Excellent mobile and fast broadband connectivity
- Conveniently located near River Ness and local amenities
**Property Overview:**
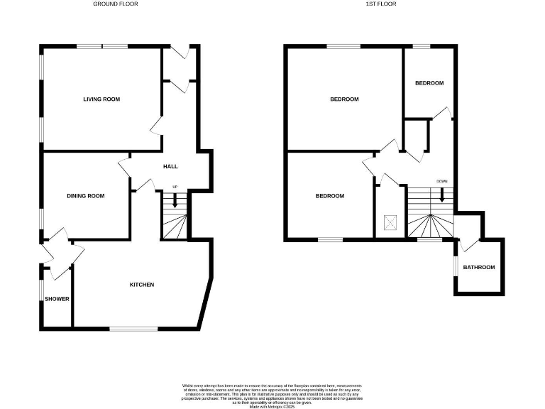
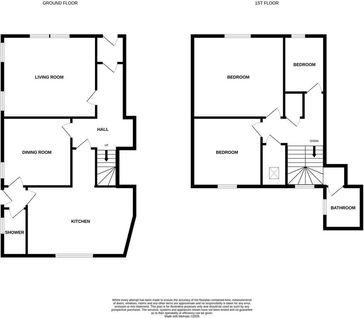
Discover the character and charm of this stunning Victorian-style semi-detached villa nestled in a sought-after area of Inverness. Spanning 1,497 square feet, this three-bedroom home retains many original features, including ornate cornicing and solid wood doors, which beautifully complement the spacious layout. The large lounge and cozy snug invite you to relax, while the airy kitchen offers practical amenities and room for dining. Enjoy the tranquil benefits of beautifully maintained country gardens, perfect for afternoon relaxation or gardening enthusiasts.
This property radiates potential for customization, with generous living spaces and a pleasant flow throughout. Ideal for families looking for a blend of traditional living and modern comforts, it’s conveniently located just a mile from the city center, with access to local shops, schools, and the picturesque Ness Islands. While the property enjoys a good overall condition, potential buyers should note that maintenance of the gardens will be required to keep this splendid outdoor retreat looking its best. With its unique design and prime location, this home offers an exceptional opportunity that won’t last long on the market. Act fast to secure a viewing before the closing date!
3 bedroom semi-detached house for sale in Abertarff Road, Inverness, IV2 — £315,000 • 3 bed • 1 bath • 1238 ft²
4 bedroom semi-detached house for sale in Victoria Villa, 43 Glenurquhart Road, Inverness, IV3 — £345,000 • 4 bed • 3 bath • 1224 ft²
3 bedroom semi-detached house for sale in 100 Kenneth Street, Inverness, IV3 — £190,000 • 3 bed • 2 bath
3 bedroom semi-detached house for sale in 34 Laggan Road, Inverness, IV2 — £225,000 • 3 bed • 2 bath
3 bedroom semi-detached house for sale in 73 Culduthel Road, Inverness, IV2 — £243,000 • 3 bed • 2 bath • 918 ft²
5 bedroom detached house for sale in 16 Drummond Circus, Drummond, Inverness, IV2 4QP, IV2 — £630,000 • 5 bed • 4 bath • 2400 ft²


































































