Modern 3-bed detached with study, garden and NHBC warranty on the edge of countryside..
- Open-plan kitchen/diner/family room with integrated appliances and French doors
- Separate lounge with bay window for formal living or entertaining
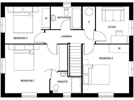
- First-floor private study suitable for home working
- 10-year NHBC warranty plus two-year developer customer care
- Allocated off-road parking and car port; decent rear garden
- New build of approx. 881 sq ft; average-sized rooms throughout
- Located in a small hamlet; limited local amenities and isolated setting
- Nearby primary schools rated 'Requires improvement'; local crime above average
A contemporary three-bedroom detached home arranged over two floors, designed around an open-plan kitchen/diner/family room with integrated appliances and French doors to the rear garden. The separate bay-windowed lounge offers a traditional reception space while a first-floor study provides genuine home-working convenience. Built using traditional brick-and-block methods, the house includes a 10-year NHBC warranty and a two-year developer customer care period for added peace of mind.
The bedrooms are arranged for restful living, with an ensuite to the principal bedroom and a family bathroom fitted with Roca white sanitaryware and chrome fittings. Externally there is allocated off-road parking plus a car port and a decent-size rear garden suitable for children or alfresco use. The property is an average-sized new build (approx. 881 sq ft) that feels light and contemporary throughout.
Buyers should note the location is a small hamlet within an ageing rural neighbourhood: local amenities are limited and the setting is relatively isolated. Local primary schools listed nearby currently have Ofsted ratings of 'Requires improvement' while two nearby secondary schools are rated 'Good' — worth considering if education is a priority. Crime levels in the immediate area are reported above average, and mobile signal is only average.
This home will suit families or buyers seeking a low-maintenance, modern detached house on a countryside edge, and it offers potential as a straightforward purchase for homeowners wanting a move-in-ready property backed by new-build warranties. Verify all measurements, tenure and specifications if these factors are important to your purchase decision.
3 bedroom detached house for sale in Chestnut Grove, Borden, Sittingbourne, Kent, ME9 — £425,000 • 3 bed • 2 bath • 692 ft²
4 bedroom detached house for sale in Chestnut Grove, Borden, Sittingbourne, Kent, ME9 — £500,000 • 4 bed • 2 bath • 1352 ft²
3 bedroom semi-detached house for sale in Chestnut Grove, Borden, Sittingbourne, Kent, ME9 — £400,000 • 3 bed • 2 bath • 890 ft²
4 bedroom detached house for sale in Chestnut Grove, Sittingbourne, Kent, ME9 — £550,000 • 4 bed • 2 bath • 1553 ft²
3 bedroom semi-detached house for sale in Chestnut Grove, Chestnut Street, Borden, Sittingbourne, Kent, ME9 — £410,000 • 3 bed • 2 bath • 687 ft²
3 bedroom end of terrace house for sale in Otterham Quay Lane, Rainham, Gillingham, Kent, ME8 — £360,000 • 3 bed • 2 bath • 726 ft²










































































































