Spacious detached house with large garden and solar savings.
Four good-size double bedrooms, principal with four-piece en-suite
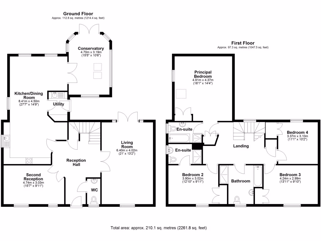
This substantial four-bedroom detached house sits on a prime corner plot in Rendlesham, offering generous family accommodation across approximately 2,261 sq ft. The ground floor provides two reception rooms, a spacious 27ft dual-aspect kitchen/dining area, a conservatory and a convenient utility and cloakroom — all arranged for everyday family life and entertaining. Upstairs are four good-size double bedrooms, including a principal bedroom with a four-piece en-suite and a second en-suite shower, plus a large four-piece family bathroom.
Practical running costs are improved by sixteen 4kW solar panels, which generate an estimated £750 per year through the feed-in tariff, and an EV charging point to the detached double garage. The property benefits from double glazing, mains gas central heating and fast broadband — features that suit modern family needs. The large, private rear garden and substantial driveway provide safe outdoor space and parking for multiple vehicles.
Location will appeal to families: Rendlesham village has a primary school rated Good, local shops, a surgery and green space, while Woodbridge — with more extensive shops, schools and rail links — is about six miles away. Rendlesham Forest and local countryside offer easy access to outdoor activities.
Notable practical points: the home sits in Council Tax band E and has an EPC rating of C. Prospective buyers should view in person to assess room proportions and the conservatory’s suitability for year-round use. Overall, this is a roomy, energy-conscious family home with good parking, outdoor space and useful local amenities.
4 bedroom detached house for sale in Abbey Close, Rendlesham, WOODBRIDGE, IP12 — £385,000 • 4 bed • 2 bath • 1529 ft²
4 bedroom detached house for sale in Acer Road, Rendlesham, IP12 — £495,000 • 4 bed • 2 bath • 1615 ft²
4 bedroom detached house for sale in Magnolia Drive, Rendlesham, Woodbridge, Suffolk, IP12 — £375,000 • 4 bed • 2 bath • 1357 ft²
4 bedroom detached house for sale in Pine Close, Rendlesham, Woodbridge, IP12 — £400,000 • 4 bed • 2 bath • 1026 ft²
4 bedroom detached house for sale in Mayhew Road, Rendlesham, Woodbridge, IP12 — £318,250 • 4 bed • 3 bath • 1632 ft²
5 bedroom detached house for sale in Knight Road, Rendlesham, Woodbridge, IP12 — £500,000 • 5 bed • 3 bath • 1195 ft²


































































































