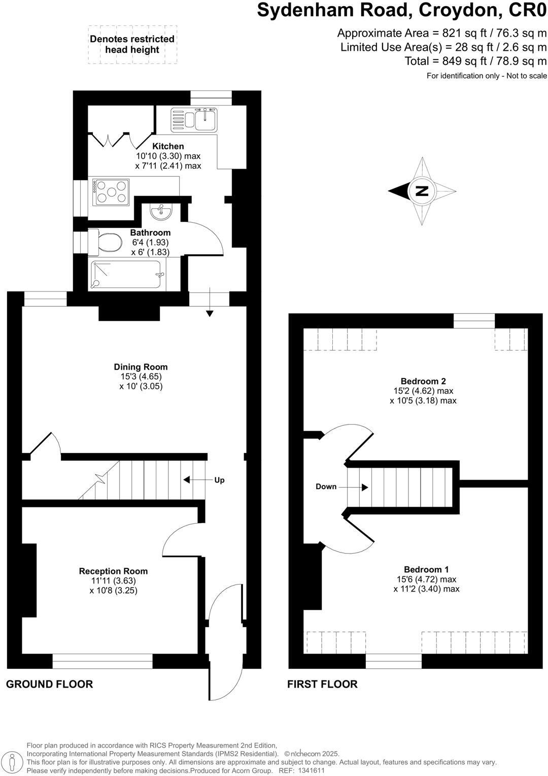
**Standout Features:**
- Three double bedrooms in a split-level maisonette
- Newly renovated with a modern kitchen
- Spacious layout measures approximately 849 sqft
- Excellent transport links near East and West Croydon stations
- Private entrance, positioned on a quiet residential street
- Affordable council tax with a long lease of 147 years
- Garden space available
**Summary:**
Discover the perfect blend of space and modern living in this charming three-bedroom split-level maisonette, ideally situated in the vibrant heart of Croydon. Boasting approximately 849 sqft of living space, this newly renovated property showcases a bright reception room, a generous dining area, and a well-equipped kitchen, all featuring elegant finishes perfect for entertaining or relaxing. Upstairs, you'll find a spacious principal bedroom alongside two additional double bedrooms—ideal for a growing family, a home office, or guest accommodations.
Enjoy the luxury of a private entrance and your own peaceful garden on a quiet street, while benefiting from top-notch transport links to Central London and various amenities just a stone's throw away. This property is a fantastic opportunity for first-time buyers or savvy investors, made even more appealing by affordable council tax and a remarkable leasehold of 147 years. Don't miss your chance to call this delightful maisonette home—such opportunities in this sought-after area won't last long!
2 bedroom apartment for sale in St. Clairs Road, Croydon, CR0 — £360,000 • 2 bed • 1 bath • 990 ft²
3 bedroom maisonette for sale in Mulgrave Road, Croydon, CR0 — £450,000 • 3 bed • 1 bath • 1195 ft²
2 bedroom apartment for sale in Longley Road, Croydon, Surrey, CR0 — £270,000 • 2 bed • 1 bath • 1163 ft²
1 bedroom maisonette for sale in Chelsham Road, South Croydon, CR2 — £260,000 • 1 bed • 1 bath • 474 ft²
2 bedroom apartment for sale in Clyde Road, Croydon, CR0 — £300,000 • 2 bed • 1 bath • 572 ft²
3 bedroom maisonette for sale in Lower Addiscombe Road, Croydon, CR0 — £325,000 • 3 bed • 1 bath • 935 ft²






























































