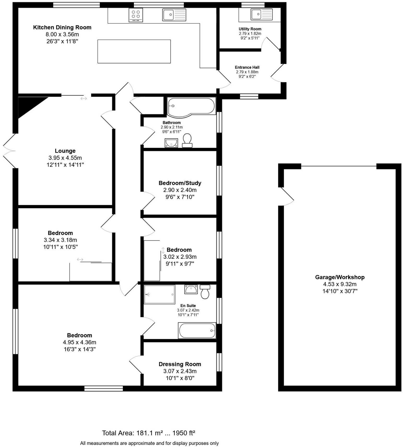
**Standout Features:**
- Newly renovated four-bedroom detached bungalow
- Sought-after village location in Terrington St Clement
- Spacious open-plan kitchen/dining room, ideal for entertaining
- Stunning master bedroom with en-suite and walk-in dressing room
- Generously sized and private rear garden
- Double garage/workshop with adjoining car port
- Ample parking with gated access
- Low crime area with excellent mobile signal and fast broadband
**Summary:**
Discover this beautifully presented four-bedroom detached bungalow in the desirable village of Terrington St Clement. Perfect for families or those looking for a peaceful rural setting, this home boasts an open-plan kitchen and dining area that invites entertaining, along with a cozy lounge featuring patio doors that lead to a private garden retreat. The impressive master suite offers not only an en-suite bathroom with a four-piece suite but also a luxurious dressing room.
Extended and modernized throughout, this property combines comfort and functionality, with built-in wardrobes in the two additional bedrooms and a versatile fourth bedroom that serves well as a study. Outside, enjoy a substantial garden with secure gated access, complemented by a double garage/workshop that provides valuable storage and workspace options.
Additional perks include low council tax, energy-efficient double glazing, and excellent connectivity. This home is move-in ready and promises a blend of modern living in a tranquil setting. Don’t miss out on this opportunity—properties like this are rare to find in such a sought-after location!
4 bedroom detached house for sale in Lovell Way, King's Lynn, PE34 — £395,000 • 4 bed • 2 bath • 1611 ft²
4 bedroom detached bungalow for sale in Terrington St. Clement, King's Lynn, Norfolk, PE34 — £315,000 • 4 bed • 1 bath • 1234 ft²
2 bedroom detached bungalow for sale in The Saltings, Terrington St. Clement, King's Lynn, Norfolk, PE34 — £230,000 • 2 bed • 1 bath • 801 ft²
5 bedroom detached house for sale in Terrington St. Clement, King's Lynn, Norfolk, PE34 — £425,000 • 5 bed • 2 bath • 1563 ft²
4 bedroom detached bungalow for sale in Terrington St. Clement, King's Lynn, Norfolk, PE34 — £425,000 • 4 bed • 3 bath • 2099 ft²
3 bedroom detached bungalow for sale in Hunters Close, Terrington St Clement, PE34 — £250,000 • 3 bed • 1 bath • 1281 ft²














































































































