Characterful family home with sizable private garden and countryside views.
Four double bedrooms each with en‑suite or bathroom
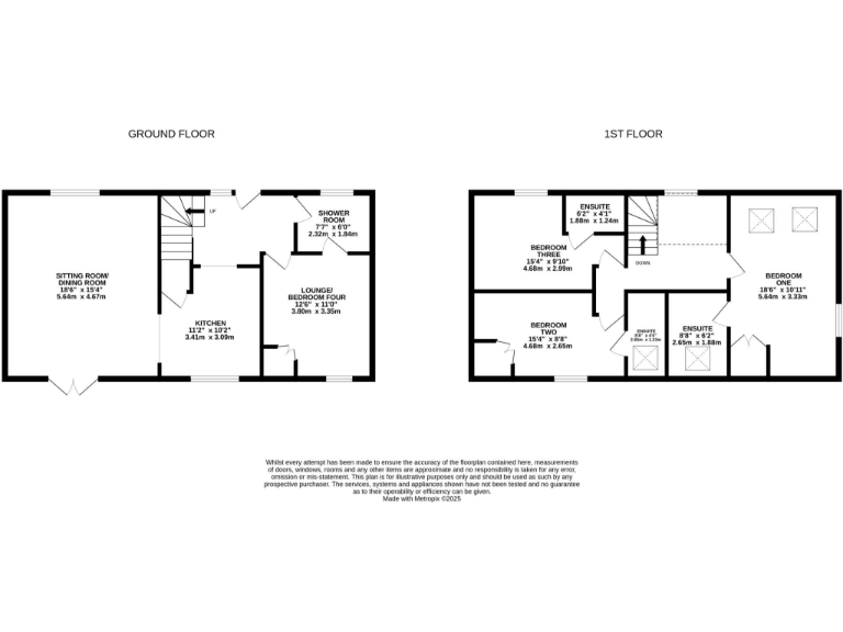
Oak-Apple Cottage is a spacious four-bedroom barn conversion set in the peaceful hamlet of Bettws Cedewain, offering generous living spaces and mature gardens with open countryside views. The ground floor’s open-plan kitchen, dining and living area and an adaptable bedroom with en‑suite create flexible family accommodation, while three double bedrooms upstairs each have their own bathroom facilities — practical for busy households or guests.
The property sits on a sizable private plot with a double carport, barn outbuilding and ample driveway parking for several vehicles. Externally the timber-clad elevations and slate roof are well maintained, and the landscaped beds, lawns and patio provide immediate outdoor amenity and private outdoor space to enjoy rural views.
Buyers should note this is a rural property with a private water supply and a septic tank shared with a neighbouring field. Heating is by oil-fired boiler and radiators; the walls are cavity as built with no added insulation assumed, which may mean higher running costs and opportunities for energy improvements. Broadband speeds are very slow and the mobile signal is average, so this home suits buyers comfortable with limited digital connectivity or prepared to invest in upgrades.
Overall, this detached barn conversion will appeal to families or those seeking a countryside retreat with character and scope to improve energy performance. The freehold tenure, low local crime and scenic setting combine to offer a calm rural lifestyle, while practical considerations around services and insulation are important when calculating ongoing costs and renovation potential.
4 bedroom barn conversion for sale in Maesmawr, Caersws, SY17 — £460,000 • 4 bed • 3 bath • 1699 ft²
3 bedroom terraced house for sale in Forden, Welshpool, Powys, SY21 — £365,000 • 3 bed • 2 bath • 1658 ft²
4 bedroom barn conversion for sale in Churchstoke, Montgomery, Powys, SY15 — £425,000 • 4 bed • 2 bath • 1660 ft²
3 bedroom terraced house for sale in Forden, Welshpool, Powys, SY21 — £350,000 • 3 bed • 2 bath • 1744 ft²
2 bedroom terraced house for sale in Forden, Welshpool, Powys, SY21 — £265,000 • 2 bed • 1 bath • 1050 ft²
4 bedroom detached house for sale in Carno, Caersws, SY17 — £425,000 • 4 bed • 2 bath • 1977 ft²






































































































































