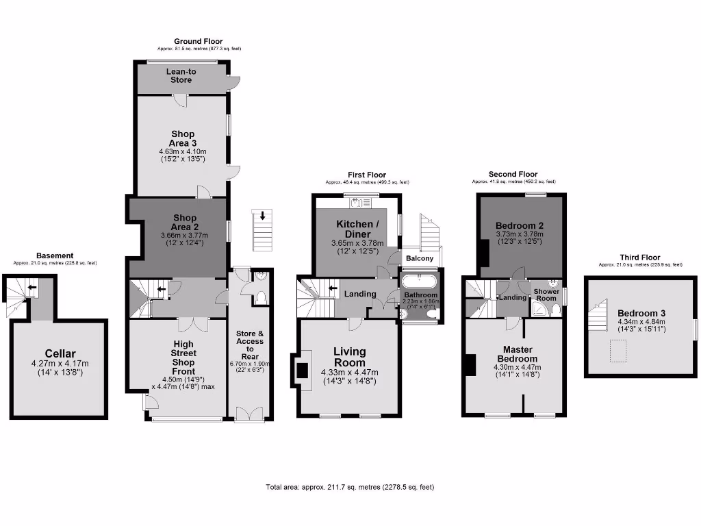
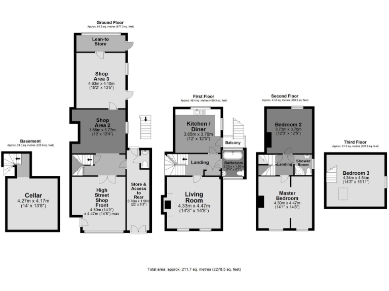
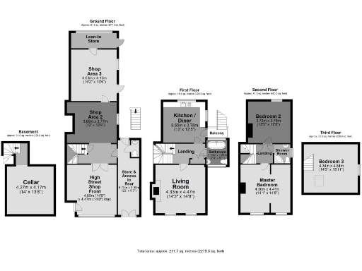
**Standout Features:**
- Spacious three-bedroom apartment with separate entrance
- Bright ground-floor retail space with street visibility
- Expansive garden with outbuildings and potential for rental income
- Entire freehold included, providing flexibility for business and home use
- No onward chain and not listed
**Summary:**
Discover an exceptional opportunity in the heart of Crediton with this unique property that merges home living and entrepreneurial potential. Situated on the vibrant High Street, this three-bedroom apartment offers a welcoming private entrance and bright, airy spaces perfect for family life. The adaptable retail area downstairs is ripe for reimagining, whether you envision a creative studio, boutique, or café. Beyond the commercial scope, a tranquil garden awaits, complete with intriguing outbuildings that hold potential for transformation into a workshop or short-stay rental (subject to planning).
This property is ideal for families and aspiring entrepreneurs alike, allowing you to live, work, and grow in a setting full of character and history. With an estimated potential income of £24,600 annually, your investment may yield a notable 7.5% return, all while enjoying the benefits of no business rates (subject to small business rate relief). The freehold aspect offers you the liberty to customize your space freely, making this an attractive proposition for anyone looking to mold a unique lifestyle or business venture. Don’t miss the chance to own this versatile property, rich in potential and ready for you to shape your future!
4 bedroom detached house for sale in 3 Hawthorne Road, EX17 2DF, EX17 — £350,000 • 4 bed • 2 bath • 1001 ft²
High street retail property for sale in High Street, Crediton, EX17 — £54,995 • 1 bed • 1 bath • 1163 ft²
3 bedroom terraced house for sale in High Street, Crediton, Devon, EX17 — £145,000 • 3 bed • 1 bath • 1255 ft²
3 bedroom end of terrace house for sale in High Street, Crediton, Devon, EX17 — £260,000 • 3 bed • 2 bath • 715 ft²
3 bedroom town house for sale in Parliament Street, Crediton, EX17 — £185,000 • 3 bed • 1 bath • 786 ft²
3 bedroom terraced house for sale in High Street, Crediton, EX17 — £235,000 • 3 bed • 1 bath • 1210 ft²






























































































































































