Bright, well-located home close to District Line and village amenities.
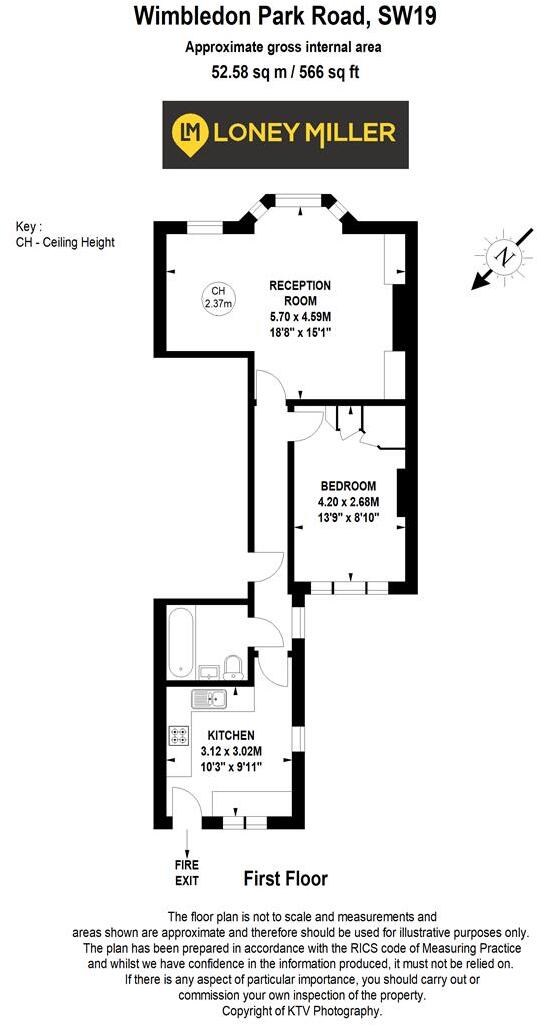
First-floor one-bedroom flat, approx. 566 sq ft
This well-proportioned one-bedroom flat occupies the first floor of a period mid-terrace and offers a clever, linear layout across approximately 566 sq ft. Light floods the sitting/dining room through a bay window, and the separate modern kitchen overlooks a private garden. The interior is tastefully decorated and ready to move into, with a double bedroom featuring fitted wardrobes and a neutral bathroom.
Located in the heart of Southfields village, the flat is moments from Wimbledon Park Road shops, cafés and the District Line station, making it a convenient choice for commuters and anyone who values local amenities. Several highly rated primary and secondary schools are within easy reach, including Outstanding-rated options, which supports longer-term resale or rental appeal.
Practical details are straightforward: leasehold with 110 years remaining, an annual service charge around £2,175 and a small ground rent of £13. Heating is by mains gas boiler and radiators; glazing is double glazed (install date unknown). The building dates from c.1900–1929 and has solid brick walls with no known insulation, so buyers should consider potential thermal upgrades to improve comfort and running costs.
Overall, this property suits a first-time buyer seeking a bright, central flat with strong transport links and village life on the doorstep. It also presents an accessible buy-to-let opportunity given location and size, though budget for service charges and possible energy-efficiency improvements when calculating ongoing costs.
2 bedroom flat for sale in Wimbledon Park Road, London, SW19 — £450,000 • 2 bed • 1 bath • 616 ft²
1 bedroom flat for sale in Wimbledon Park Road, London, SW18 — £525,000 • 1 bed • 1 bath • 585 ft²
1 bedroom flat for sale in Whitlock Drive, London, SW19 — £270,000 • 1 bed • 1 bath • 509 ft²
1 bedroom apartment for sale in Sutherland Grove, London, SW18 — £360,000 • 1 bed • 1 bath • 495 ft²
1 bedroom apartment for sale in Replingham Road, London, SW18 — £400,000 • 1 bed • 1 bath • 689 ft²
1 bedroom flat for sale in Merton Road, London, SW18 — £300,000 • 1 bed • 1 bath • 614 ft²


























