Immaculate four-bed bungalow on a large south-facing plot close to Ash station.
Four double bedrooms on one level
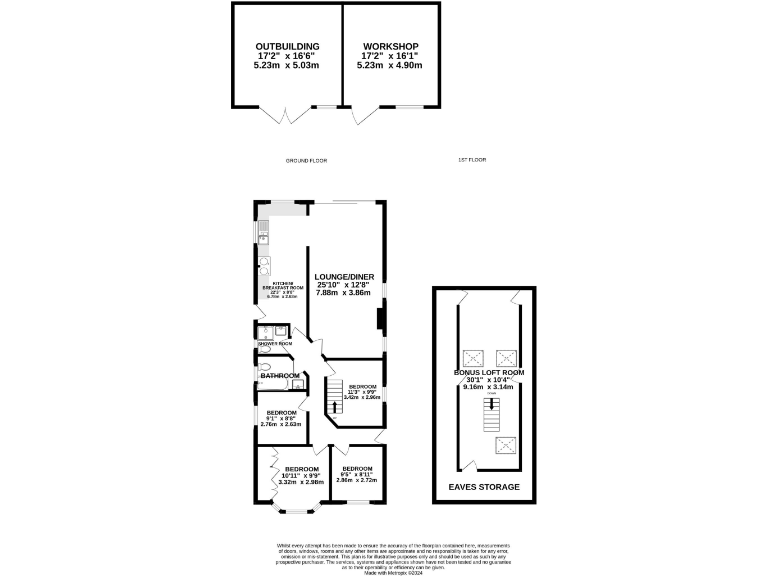
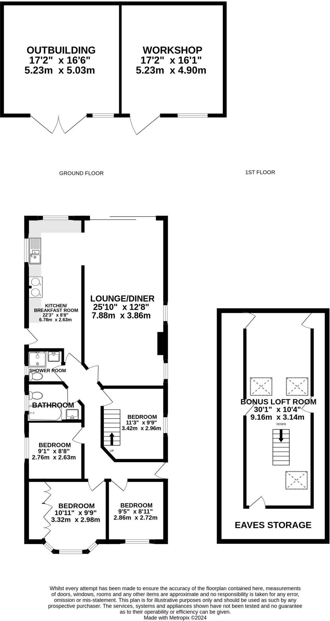
This detached four-bedroom bungalow sits on a large, south-facing plot in quiet Ash Green and is presented in immaculate, move-in condition. The extended kitchen/breakfast room and open lounge/diner with sliding doors create a bright, sociable ground-floor layout, while a generous loft room (30 x 10 ft) offers flexible space for hobbies or occasional guests.
Outside, the property benefits from a substantial in-and-out driveway with carport, gated frontage and a well-maintained rear garden with patio and lawn. A sizeable outbuilding provides useful workshop and storage space. The location is convenient for road links (A331/A31) and is within about a mile of Ash railway station.
Practical considerations include an EPC rating of D (60), council tax band E (above average) and double glazing installed before 2002, which may be less efficient than modern glazing. Broadband speeds are reported as slow, and the loft room is accessed via the fourth bedroom, which may affect privacy or create conversion constraints.
This home will appeal to buyers seeking spacious single-level living with renovation potential in a very affluent, low-crime village setting — especially downsizers wanting a sizable plot and easy access to nearby towns. The mid‑century construction and filled cavity walls are typical of the era; buyers wanting full modernisation should budget accordingly.
4 bedroom detached bungalow for sale in Pilgrims View, Ash Green, GU12 — £674,500 • 4 bed • 2 bath • 1348 ft²
4 bedroom bungalow for sale in White Lane, Ash Green, Guildford, Surrey, GU12 — £550,000 • 4 bed • 2 bath • 1638 ft²
4 bedroom bungalow for sale in Guildford Road, Ash, Surrey, GU12 — £950,000 • 4 bed • 2 bath • 1922 ft²
4 bedroom detached house for sale in White Lane, Ash Green, Aldershot, Surrey, GU12 — £700,000 • 4 bed • 2 bath • 1550 ft²
6 bedroom bungalow for sale in Hazel Road, Ash Green, Surrey, GU12 — £700,000 • 6 bed • 4 bath • 2200 ft²
4 bedroom bungalow for sale in Shawfield Road, Ash, Guildford, Surrey, GU12 — £750,000 • 4 bed • 3 bath • 2000 ft²






































































































































