**Standout Features:**
- Spacious 3-bedroom town house with holiday rental history
- Located on the scenic NC500 Tourist Route
- Enclosed garden with outdoor electric sockets and water tap
- Chain-free and freehold tenure
- Fast broadband and excellent mobile signal
- Close to local amenities and outdoor pursuits
**Concerns:**
- Currently set up as a holiday let and exempt from council tax if kept as such
- Potential council tax implications if converted to a residential home
- Maintenance and condition details not specified
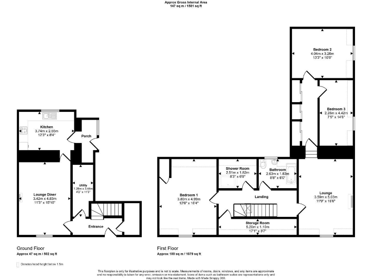
This charming and spacious town house presents an excellent opportunity for families or investors seeking rental income. Located in the picturesque seaside village of Helmsdale, this property not only offers three generously sized bedrooms but also boasts two bathrooms for added convenience. The heart of the home features a welcoming lounge/diner with a cozy multi-fuel burner, ideal for family gatherings. The kitchen, functioning well for day-to-day life, overlooks a tranquil enclosed garden, providing a perfect setting to unwind outdoors.
Whether you're looking for a delightful family home or a reliable holiday rental in a prime tourist area, this property ticks all the boxes. With a strong rental reputation already established, it's ripe for generating income and comes with negotiable furnishings to suit your needs. Explore the potential of this charming residence, but don't wait too long—properties like this, especially in sought-after locations along the NC500, attract considerable interest!
3 bedroom end of terrace house for sale in Simpson Crescent, Helmsdale, KW8 6LE, KW8 — £125,000 • 3 bed • 1 bath • 980 ft²
2 bedroom semi-detached house for sale in Shore Street, Helmsdale, KW8 6JZ, KW8 — £200,000 • 2 bed • 2 bath • 1001 ft²
3 bedroom detached house for sale in Anvil House, Strathnaver Street, Helmsdale, Sutherland KW8 6JJ, KW8 — £260,000 • 3 bed • 3 bath • 1959 ft²
4 bedroom detached house for sale in Shalom, Navidale, Helmsdale, Sutherland KW8 6JS, KW8 — £225,000 • 4 bed • 2 bath • 1689 ft²
3 bedroom detached bungalow for sale in Creag Bun'ullidh, Helmsdale, Sutherland KW8 6JS, KW8 — £295,000 • 3 bed • 2 bath • 1807 ft²
2 bedroom detached house for sale in North Lodge, Navidale, Helmsdale, Sutherland, KW8 — £300,000 • 2 bed • 2 bath • 1504 ft²










































































