Large plot with consent for a light-filled single-storey 3-bed home in Heacham; sold at auction..
Planning consent for contemporary single-storey 3-bedroom home (ref 24/00373/F)
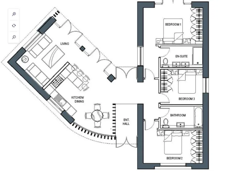
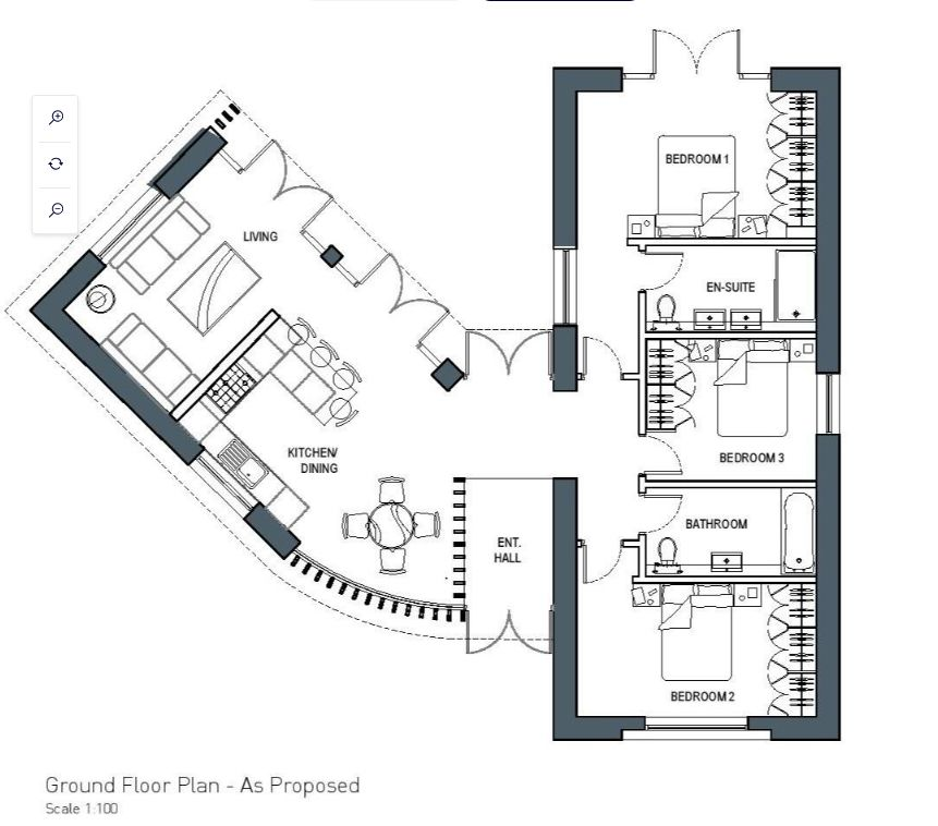
A rare opportunity to buy a large building plot with full planning consent for a contemporary single-storey three-bedroom home in popular Heacham. The scheme, designed by award-winning local architects, promises generous glazed elevations, natural materials and an open-plan reception that maximises light and coastal village living. The consented design includes three double bedrooms, a master en-suite and family bathroom, with private garden space.
This plot is offered for sale at auction and will be sold via secure online bidding; tenure is unknown and interested buyers should verify ownership and legal details prior to bidding. Buyers should note the site has not been inspected and any onward development will require adherence to planning conditions shown under reference 24/00373/F on the King's Lynn & West Norfolk Council planning portal.
Practical benefits include low local crime, no flood risk, excellent mobile signal and proximity to well-rated primary and secondary schools. Drawbacks to consider: broadband speeds are slow in the area, the sale is at auction with associated T&Cs, and purchasers will need to manage build costs, site set-up and utilities connections for a new build.
Plot for sale in Lamsey Lane, Heacham, PE31 — £170,000 • 3 bed • 2 bath
3 bedroom detached house for sale in Lamsey Lane, Heacham, PE31 — £320,000 • 3 bed • 1 bath • 1285 ft²
Plot for sale in Ringstead, Hunstanton, Norfolk, PE36 — £475,000 • 5 bed • 4 bath • 689 ft²
Land for sale in Gelham Manor, Dersingham, KING'S LYNN, PE31 — £100,000 • 1 bed • 1 bath
Plot for sale in Stanhoe Road, Docking, King's Lynn, PE31 — £300,000 • 3 bed • 1 bath
3 bedroom bungalow for sale in South Moor Drive, Heacham, King's Lynn, Norfolk, PE31 7BW, PE31 — £195,000 • 3 bed • 1 bath • 681 ft²






















