Six-bedroom detached with garden, garage and designer bathroom in a quiet cul-de-sac.
Six bedrooms across three floors, flexible family layout
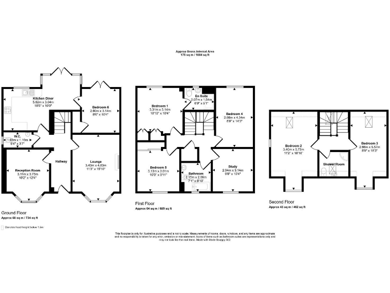
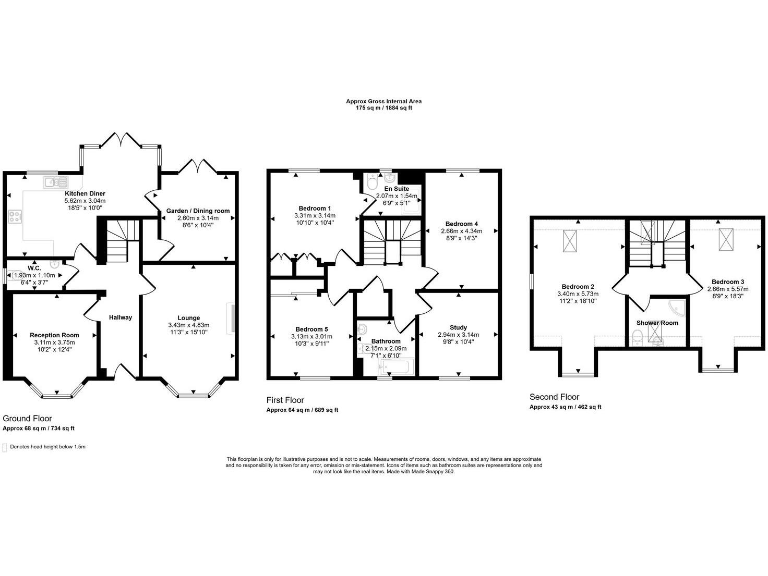
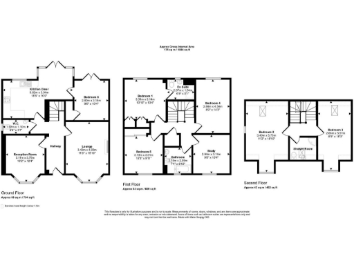
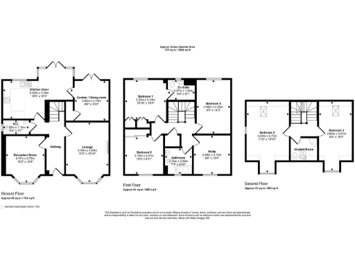
Tucked at the end of a quiet cul-de-sac, this six-bedroom detached house offers flexible family living across three reception rooms and three bathrooms. The home was built in the mid-2000s and benefits from double glazing, mains gas central heating and bespoke storage that helps keep living spaces organised. A secure gated entrance, double detached garage and private rear garden add practicality for families and multigenerational households.
The accommodation is arranged over multiple floors, so it suits households that value separate living zones — playroom, home office and entertaining spaces are all possible. The designer bathroom and contemporary en-suites provide a high-end finish in key rooms. Broadband and mobile signal are strong, and the property sits in an affluent, comfortable-suburbia area with several Good and Outstanding-rated schools nearby.
Be upfront about the trade-offs: total internal floor area is modest for six bedrooms (approximately 1,491 sq ft), so several rooms are small to medium rather than generously proportioned. Council Tax is band F and will be a higher running cost. Crime is average for the area, and off-street parking accommodates two cars on the driveway (the double garage provides further storage but limits secure internal parking).
Overall, this home suits growing families or multigenerational buyers who want private outdoor space, multiple living areas and convenient local amenities, and who are comfortable with a compact footprint and higher running costs.
6 bedroom detached house for sale in Grenadier Close, Bramley Green, TS18 4QJ, TS18 — £315,000 • 6 bed • 3 bath • 1949 ft²
6 bedroom detached house for sale in Woodchester Grove, Ingleby Barwick, TS17 — £440,000 • 6 bed • 3 bath • 2279 ft²
3 bedroom detached house for sale in Cennon Grove, Ingleby Barwick, TS17 — £230,000 • 3 bed • 2 bath • 1041 ft²
6 bedroom detached house for sale in Lullingstone Crescent, Ingleby Barwick, TS17 — £425,000 • 6 bed • 3 bath • 2121 ft²
6 bedroom detached house for sale in Exford Close, Sober Hall, TS17 — £399,000 • 6 bed • 3 bath • 1842 ft²
4 bedroom detached house for sale in Letch Lane, Stockton-on-Tees, Durham, TS21 — £550,000 • 4 bed • 3 bath • 3498 ft²


























































































