Large private garden, generous single-floor living and garage in sought-after Dunnington location.
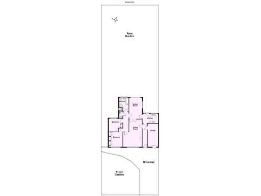
Detached two-bedroom single-storey bungalow with integral single garage
Large, mature rear garden with sun patio, greenhouse and good privacy
Extra-large living room and separate dining/garden room with sliding doors
Galley kitchen with utility and potential to extend subject to planning
Boarded loft with Velux offers storage or further conversion potential
Generous block-paved driveway for multiple vehicles, off-road parking
EPC rating D — not as efficient as newer homes; factor running costs
Modest building footprint despite large garden; extensions may be needed
Set on a mature, well-screened plot in sought-after Dunnington, this two-bedroom detached bungalow offers comfortable single-floor living with unusually generous gardens. The layout includes a large living room, a dining/garden room with sliding doors onto a paved sun terrace, and an integral garage with a wide block-paved driveway providing multiple off-street spaces. A modern house bathroom plus a separate shower room add practical convenience.
The kitchen is a galley style with an adjacent utility and direct garden access; there is clear scope to enlarge the footprint subject to planning consent for anyone wanting more open-plan living. A boarded loft with a Velux offers extra storage or conversion potential (subject to checks). The property is freehold and sits within Fulford School catchment, close to village amenities, Hagg Wood walks and the Route 66 cycle path—appealing to downsizers who want easy access to York.
Practical points to note: the EPC is band D and the house will suit buyers happy with a bungalow of this age and specification rather than a new-build finish. The building footprint is modest relative to the large rear garden, so prospective buyers should factor in potential costs if extending. Overall this home is well-located for village life and delivers roomy, single-storey accommodation with substantial outdoor space.
2 bedroom detached bungalow for sale in Greenside Walk, Dunnington, York YO19 5RQ, YO19 — £500,000 • 2 bed • 1 bath • 1470 ft²
3 bedroom detached bungalow for sale in Curlew Glebe, Dunnington, York, YO19 5PQ, YO19 — £299,500 • 3 bed • 1 bath • 804 ft²
3 bedroom detached bungalow for sale in Petercroft Lane, Dunnington, York YO19 5NA, YO19 — £325,000 • 3 bed • 1 bath • 777 ft²
3 bedroom detached bungalow for sale in Greencroft Court, Dunnington, York YO19 5NN, YO19 — £375,000 • 3 bed • 2 bath • 1349 ft²
3 bedroom detached bungalow for sale in Kendal Close, Dunnington, York, YO19 5PG, YO19 — £350,000 • 3 bed • 1 bath • 1103 ft²
2 bedroom detached bungalow for sale in Petercroft Lane, Dunnington, YO19 — £315,000 • 2 bed • 1 bath • 1175 ft²






















































































