**Standout Features:**
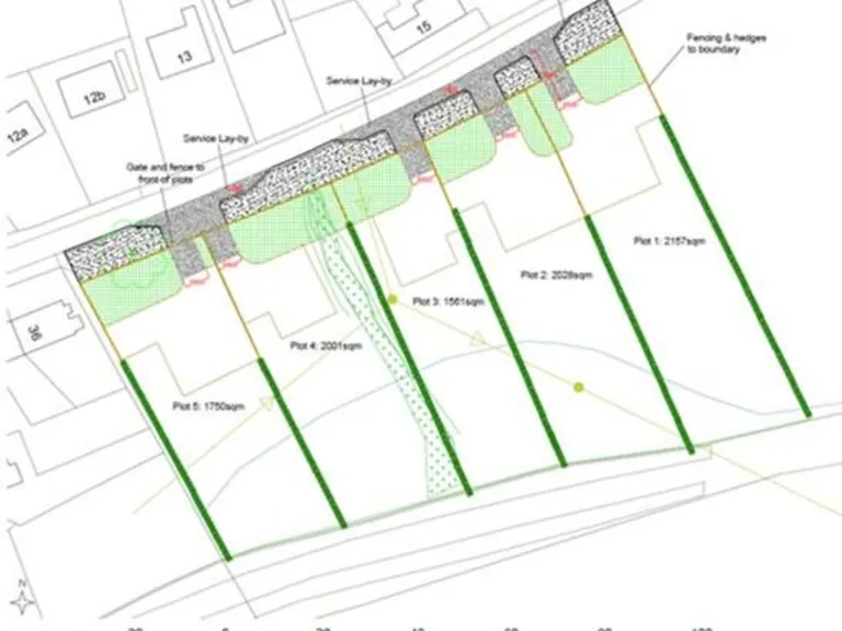
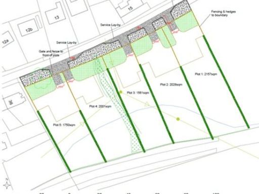
- Five exclusive plots for detached homes with planning permission (Ref: 19/00870/PPP).
- Generous plot sizes ranging from 0.17 to 0.53 acres.
- Accessible semi-rural location with lovely views of surrounding farmland.
- Mains service connections located nearby.
- Ideal for self-builders or development investment opportunities.
**Summary:**
Discover five exclusive plots nestled on Marchmont Road in the picturesque village of Greenlaw, TD10. Each plot offers ample space, ranging from 0.17 to 0.53 acres, ideal for building your dream detached family home while enjoying stunning countryside views. Located in a semi-rural setting, these plots are part of a close-knit community with convenient access to local amenities, including a primary school, shops, and recreational activities in the beautiful Scottish Borders.
With planning permission already in place, this opportunity suits self-builders or developers aiming to invest in future provisions. Although connected mains services are nearby, prospective buyers should conduct their due diligence for access requirements. Enjoy a tranquil lifestyle here, surrounded by nature yet close enough to the vibrant towns of Duns and Kelso. Don't miss out on this rare chance to create a bespoke dwelling in a serene environment—act swiftly, as opportunities like this are coveted!
Plot for sale in Plot 4, Birkenside Farm, Earlston, Berwickshire, TD4 6AR, TD4 — £150,000 • 1 bed • 1 bath • 12197 ft²
Plot for sale in Guards Road, Coldstream, Berwickshire, TD12 — £150,000 • 1 bed • 1 bath
6 bedroom country house for sale in The Glebe House, Legerwood, Earlston, TD4 — £750,000 • 6 bed • 3 bath • 1323 ft²
Land for sale in Building Plots 1 & 2, Cranshaws, TD11 — £90,000 • 1 bed • 1 bath • 11761 ft²
Land for sale in Plot 1, Edengrove, Gordon, TD3 — £80,000 • 1 bed • 1 bath
5 bedroom farm house for sale in Reedy Loch Famrhouse, Duns, Berwickshire, TD11 — £945,000 • 5 bed • 3 bath • 2853 ft²










































































